© Fernando Gomulya
- 建筑师: TWS Partners ; TWS & Partners, Niken Larasati, Agung, in coordination with TWS & Partners
- 面积 该建筑项目的领域 面积: 1500 m²
- 项目年份 该建筑项目的竣工年份 项目年份: 2007
- 摄影师 摄影师: Fernando Gomulya
• 雅加达, 印度尼西亚
上下文和位置
这个项目是一个小规模的混合使用的建筑,位于Jakarta。建筑的主要功能,是乌布著名BEBEK BENGIL餐厅,巴厘。原来的Bebek Bengil餐厅非常有名的与它的香酥鸭菜单特色并拥有独特的地理位置,它坐在异国情调的大米或PADI领域。
© Fernando Gomulya
这就是为什么这个地方成为了必备之一 - 参观的旅游目的地位置4.9.1本身就是一种传承低层住宅,高层商业企业之间的过渡区域。在这个特定的背景和简要业主的回应,我们来决定做一个五层楼弥合城市天际线的过渡,虽然它让建筑,直到8层按规则。
© Fernando Gomulya
鉴于这种情况,我们生成几个方面需要被设计过程中响应,如:和蔼的方式向遗产区域。如何向内呈现商业方面的可视化的巴厘岛身份(如贝贝克Bengil餐厅的原点位置),并漫入雅加达大都市。如何将现代气息把握的地方精髓的由来贝贝克Bengil餐厅巴厘岛之内,并把它翻译成很有限的三角部位。
© Fernando Gomulya
建筑概念
该建筑分为两个体量的垂直排列彼此之间的界定,并从周围的城市空间划分忙碌的内庭院空间。第一集结的皮肤装配在定制幕墙,模仿外观巴厘岛红砖安排。
© Fernando Gomulya
浅绿的颜色被选中,作为窗帘玻璃材料在响应向天空的反射扩散与天空的外观,并尽量减少其影响到周围邻居。第一体量被设置成平行于主路,稍曲线和高架圆形列的阵列,这将作为一个缓冲区和过渡区的顶部。
© Fernando Gomulya
第二次集结沿围墙设置生成的内部庭院到户外活动空间。庭院将作为一个城市绿洲,并与巴厘岛热带景观的设计款式。在这里人们可以回想一下原产地的Bebek Bengil在巴厘岛的记忆,在户外用餐区的意识,所有景观特色的地方。
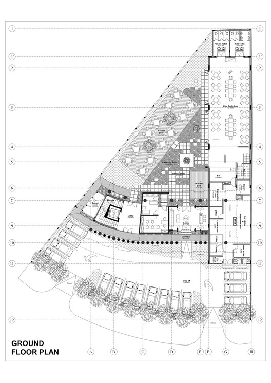
平面图
有几种类型的餐厅体验,比如在第二层的私人阳台,俯瞰它的景观,传统的开放式凉亭与木屋顶,以及食堂,以期在院子里“红毛图阿”的雕塑,位于四合院的“中心”,将极大的客人,他们进入封闭的大厅,充当从主干道的喧嚣气氛的过渡区之后。
立面图
数据来源:Archdaily,前往原文链接:https://www.archdaily.cn/cn/760443/wu-bu-tws-and-partners
