© 张虔希
- 建筑师: 日清设计 ; 日清设计
- 面积 该建筑项目的领域 面积: 900 m²
- 项目年份 该建筑项目的竣工年份 项目年份: 2016
• Nanjing, 中国
© 张虔希
本案位于南京方山东麓,大学城公园北侧草甸之上,南侧正对小球高尔夫球场开阔草坪。在周边景致围绕的场地上,建筑以低伏的姿态融于远山郊野之间。设计师在入口处划分出独立的前厅接待空间,通过十米长廊下的竹林缓阶作为引导,从建筑端侧进入室内。场地东侧的竖向玻璃灯塔布置在水院之上,阳光透过内衬于玻璃幕墙下的穿孔金属百叶投下斑驳的疏影。室内观景的视线越过整体抬升的无边水院眺望南侧绿意盎然的高尔夫球场,建筑本身也仿佛成为了草甸之中的景色。
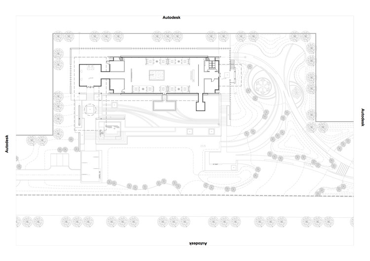
建筑布局
项目布局取意“一亭一院一塔 ”的组群方式,舒缓的主体建筑与西侧接待前亭、东侧玻璃灯塔共同围合中央水院。
© 张虔希
入口
建筑入口处场地抬起,出挑深远的雨篷,檐下阶前的竹林,缓步前行的台阶,米白色的景墙,层层跌落的水景,寥寥数笔,勾勒出雅致内敛的东方意境。
© 张虔希
水院
长廊,景墙,主体建筑与玻璃塔围绕中央水院错落分布,黑色大理石铺装的无边水院湛清如镜,建筑似浮于山水之间。
© 张虔希
主体建筑
主体建筑的辅助办公空间布置在东西两侧实墙内,中间通高的展陈空间则通过开放的玻璃幕墙与半开放的镂空金属百叶与室外景致相为映衬。屋顶出挑深远,收边细致精巧,弱化建筑体量。
© 张虔希
冥想空间
3.9米见方,12米通高的玻璃塔通过狭长的室内廊道与主体建筑相连。幕墙内悬挂古铜色穿孔金属百叶,半虚半实之间隐约透出室内灯光,营造静谧开放的休憩冥想空间。
© 张虔希
材料与构造
主体建筑二层悬挂4毫米厚古铜色中式纹样穿孔铝板,大方简约不失东方韵味。屋顶挑檐东西向出挑4.5米,南北向出挑3米,屋面坡度仅为12°,檐口采用90毫米单凹槽铝板封边,整体轻盈精巧。
© 张虔希
© 张虔希
© 张虔希
Plan
Detailed

数据来源:Archdaily,前往原文链接:https://www.archdaily.cn/cn/869251/nan-jing-tai-shan-qi-hao-yuan-zhan-shi-zhong-xin-ri-qing-she-ji
