© Purnesh Dev Nikhanj
- 建筑设计: Studio Ardete
- 面积 该建筑项目的领域 面积: 838 m²
- 项目年份 该建筑项目的竣工年份 项目年份: 2021
- 摄影师 摄影师: Purnesh Dev Nikhanj
- 厂家 该项目中使用产品的品牌 厂家: Asian Paints, Saint-Gobain, Schindler AS, TATA, Ultratech
- Lei Bie: 混合用途建筑, 商业建筑
- 主创建筑师: Badrinath Kaleru, Prerna Kaleru
- 设计团队: Badrinath Kaleru, Prerna Kaleru, Sanchit Dhiman, Nancy Mittal, Abhimanyu Sharma, Pragya Singh, Rahul Ghosh
- 业主: R.S Builders
- 工程师: Ravijeet Singh
- 立面顾问: Ravijeet Singh
- 建筑结构顾问: Jagmohan Singh Nagi
- 立面结构顾问: Mr.Vikas Bhardwaj
- 建筑师: Studio Ardete
- 结构顾问: Continental Foundations
- 灯光顾问: The Luminars
- 项目管理: R.S Builders
- 城市: 潘奇库拉
- 地区: 印度
• 潘奇库拉, 印度
© Purnesh Dev Nikhanj
该商业建筑位于当地的新兴工业区,主要服务于办公室和商业展厅的出租。建筑师试图通过东南两侧立面的设计,营造一种独特的快乐氛围,激发空间的商业潜力。最终,建筑师选择了灰色盒子的建筑语言。
© Purnesh Dev Nikhanj
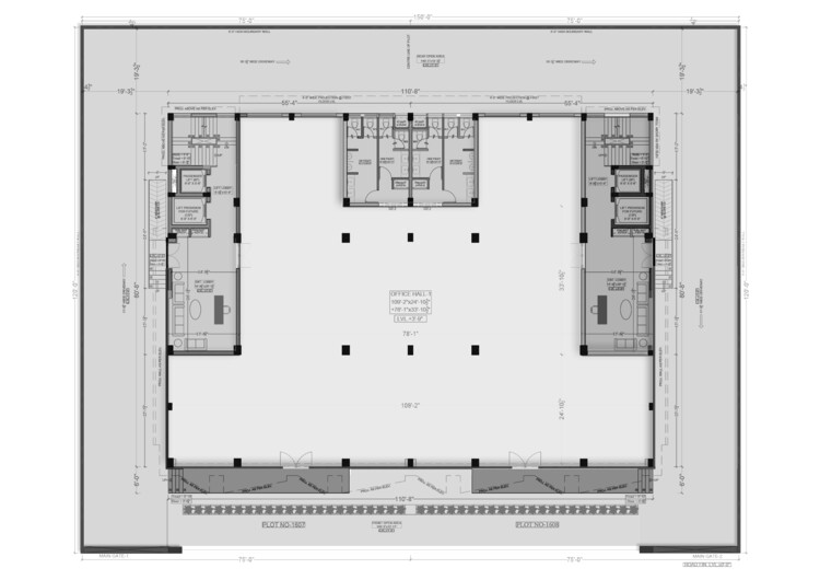
地面层平面图
业主将两个小地块拼合在一起,希望建筑师能通过分形系统的建立,营造宏伟震撼的环境氛围,以进一步提升地块的商业价值,加速商铺的出租进程。建筑师依据当地的建造标准,在大楼的立面进行浪漫式设计手法的探索。立面最终的形态语言好似一个打开的钱包,在保证低造价的同时,还赋予该大楼以地标属性。
© Purnesh Dev Nikhanj
大楼的独特性和舒适性进一步确保了大楼的商业价值。混凝土立面则确保了大楼的坚固度和耐用性。独特的立面语言还使得租借的商户可以根据自身的需求于预留孔洞处安装心仪的石材。
立面图01
充足的光照可以通过立方体块的阳台照亮室内,而独特的角度切割手法也让立面玻璃的安装变得简单方便。大楼内部的采光和通风也都因此处于较高的水准,保证了使用者的舒适感。
© Purnesh Dev Nikhanj
建筑师遵循少即是多的原则,试图通过宁静感的塑造给人以圣洁之意,在室内色彩的选择上也以浅米色和白色为主。这一原则在立面设计中体现地淋漓尽致。象牙色的切割方形体块配合带有栏杆的混凝土立面,加上随风舞动的绿植,给商户们提供了理想的休憩之地。
© Purnesh Dev Nikhanj
“无尽体块”这一名字也完美印证了大楼的立面矩阵。精准切面角度的计算让自然光可以洒遍室内的每个角落,给商业空间注入充足的活力。大楼立面的建造大约花费了一年半的时间。
立面爆炸图
该项目的每平方英尺造价为1000印度卢比,约合每平方米943元。建筑师希望于此延续柯布西耶式的精神,即通过建筑师自身的微光力量,逐渐点亮都市生活的每个角落,为市民带去快乐和幸福。
© Purnesh Dev Nikhanj
数据来源:Archdaily,前往原文链接:https://www.archdaily.cn/cn/961592/yin-du-wu-jin-ti-kuai-da-lou-studio-ardete
