© Alphaville Architects

    Kyoto, 日本

    • 建筑师: Alphaville Architects
    • 面积 该建筑项目的领域 面积:  218 m²
    • 项目年份 该建筑项目的竣工年份 项目年份:  2022
    • Lei Bie:  独立住宅
    • 主创建筑师:  Kentaro Takeguchi, Asako Yamamoto
    • 建筑设计:  Alphaville Architects
    • 结构设计:  Jun Yanagimuro Structural Design
    • 城市:  Kyoto
    • 地区:  日本



    © Alphaville Architects

    堆叠的坪庭(tsuboniwa)花园
    传统的京都平面密度很高,在狭窄的土地上排成一排的联排别墅,横截面密度低。街道旁林立的低层建筑,通过平面尺度上排列街道花园和坪庭等外部空间,以确保丰富的生活空间。然而如今,虽然平面密度保持不变,但是对于中高层建筑的横截面需求不断增长。房屋必须想方设法在新的情形下整合有效的外部空间,同时利用城市的特点优势。

    © Alphaville Architects

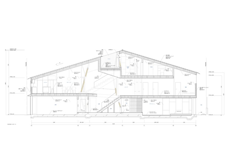
    剖面图

    © Alphaville Architects

    居民来自日本家庭,但是同时在美国开展业务,孩子们在日本上学,在美国度过长假。因此,一个活跃的家庭所需的外部空间,例如露台、阳台和花园,在房子中被三维地雕刻出来,并构思了围绕划分区域发展的生活方式。作为雕刻的辅助线,引入一条与城市网格倾斜的轴线,使其沿对角线穿过场地延伸至房子所面对的繁华街道寺町街。允许通过外部空间打通从室内到城市的视野,同时让光线和风通过房屋内部。

    © Alphaville Architects

    剖面图

    © Alphaville Architects

    这是一个三维排列的坪庭。允许人、视野和自然通过,单悬撑而不是承重墙,连续放置在从一楼到三楼的倾斜轴线上。每一个外部空间都像多边形棱镜一样,给居住在狭长房子里的人一种四通八达的空间感。不论是深邃还是开阔的天空,或是环望远处的城市,切割出京都全新的表现。(竹口健太郎+山本麻子)

    © Alphaville Architects

    © Alphaville Architects

    响应空间质量的支架
    中庭由楼梯和斜坡连接的前后跃层配置与之前的 NEW KYOTO TOWN HOUSE 项目保持一致。这一次,我们重点加强了在中庭插入空隙空间(露台、阳台和阳光花园),这与正统的联排别墅的逻辑是不同的。在街道和后侧区域内有许多的房间和墙壁,支架被放置在墙中(“支架=墙”)。而在中庭,为了维持空隙空间的独立性,决定将支架暴露在外,并通过采取大的位置将单悬撑让人们用于穿行,让“支架≠墙”。尝试通过支架的使用来响应空间的质量。(柳室纯 Jun Yanagimuro )

    © Alphaville Architects

    分析图

    © Alphaville Architects

    京都通过将从街道到房屋内部花园(坪庭)的横向视野与城市景观和山相融合,确保了美好的生活空间。但是在近几年,随着高层建筑的需求,需要设计出有效融合外部空间的方法,例如像运用布达算法一样将露台(3d 坪庭)从房屋中三维地移除,并根据三维庭院生活。通过引入立体的庭院作为倾斜与城市网格的轴线,使用单侧的连续支撑而不是从一楼到三楼的承重墙,长边的空隙可以将房屋与自然相连接。这些外部空间为狭长房屋中的居住者提供了空间感,作为京都的新形象扩展到城市。

     

    文字描述来自建筑师

    译者:张淼

    © Alphaville Architects
    数据来源:Archdaily,前往原文链接:https://www.archdaily.cn/cn/994133/xin-jing-du-fang-wu-4-alphaville-architects

    声明:本站所有资源,如无特殊说明或标注,均收集于网络,且无法追溯原作者或持有人。任何个人或组织,在未征得本站同意时,禁止复制、盗用、采集、发布本站内容到任何网站、书籍等各类媒体平台。如若本站内容侵犯了原著者的合法权益,可联系我们进行处理:bigsone@qq.com。