© Fernando Alda
- 建筑师: Blanca Esteras Serrano, Ácrono Arquitectura
- 面积 该建筑项目的领域 面积: 800 m²
- 项目年份 该建筑项目的竣工年份 项目年份: 2019
- 摄影师 摄影师: Fernando Alda
- 厂家 该项目中使用产品的品牌 厂家: Adobe, AutoDesk, CE3X, Carpinteria Hijos de José Torres Requena, Cortizo, Cypemep, Piedras Ornamentales Extremeñas, Roca, Sklum, Tres, VMZINC, Vertical & Musgo
- Lei Bie: 社区建筑, 市场
- 主持建筑师: Luis León Ortiz, María Cristina Guzmán Rodríguez, Álvaro Pulido López Camino, Blanca Esteras Serrano
- 客户: Excelentísimo Ayuntamiento de Baza
- 结构计算: Miguel Ángel Jiménez Dengra
- 合伙人(竞赛阶段): Francisco Gallego Sánchez
- 合伙人(项目执行阶段): Victor Manuel Ocaña Mesa
- 施工执行经理: Vallejo Caparrós
- 城市: 巴萨
- 地区: 西班牙
• 巴萨, 西班牙
© Fernando Alda
项目位于西班牙格拉纳达省巴萨市历史街区的一个特殊位置,提供了重新激活历史中心的绝佳机会,由于该地区商业活动的逐渐衰落,城市中心至今仍陷入人口减少的问题。
© Fernando Alda
该方案旨在适应新的城市需求,重点考虑受保护的城市环境,可持续发展和节能,无障碍通道,视觉通透性以及建筑形象的维护。
© Fernando Alda
基于此,我们希望强调现有市场环境中的路径,并将其引入建筑物内部。通过这种方式,建筑产生了新的活动和用途,对建筑物进行了整合,加强了当前的城市路网。
© Fernando Alda
功能分析图
© Fernando Alda
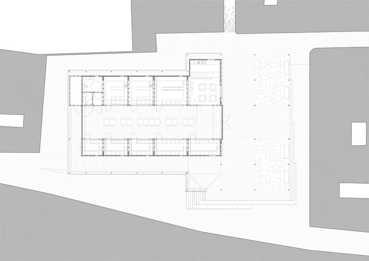
该项目主要包括两大区域。一方面是一个带屋顶的公共广场和一楼的市场区域,另一方面是半地下的青年中心。根据不同的需要,每种用途的功能可以独立或组合。
© Fernando Alda
剖面施工图
© Fernando Alda
建筑师拆除了底层所有立面,通过连续的木制围护结构组织市场摊位。这个市场空间与现有结构的家具相配合,位于高度较低的侧廊下方,为使用者提供了较大的中央高度空间。市场区域在冬季持续供暖,当天气变暖时,便向外部开放,可以在建筑物两侧售卖。这样,广场和市场就融合了起来。
© Fernando Alda
市场剖面图
© Fernando Alda
该项目体现了原有建筑未被发掘的优点,使之适应21世纪的需求,在保护其环境的同时优化空间。
© Fernando Alda
数据来源:Archdaily,前往原文链接:https://www.archdaily.cn/cn/936518/ba-sa-shi-zheng-shi-pin-shi-chang-yu-qing-nian-zhong-xin-gai-zao-aono-arquitectura-plus-blanca-esteras-serrano
