© Chenhao
- 建筑师: AIR Architects
- 面积 该建筑项目的领域 面积: 100 m²
- 项目年份 该建筑项目的竣工年份 项目年份: 2020
- 摄影师 摄影师: 陈颢
- Lei Bie: 餐饮建筑, 文化建筑, 商店
- 主创建筑师: 苏杰, 刘欣
- 项目文案: 王天钰
- 城市: Hangzhou
- 地区: 中国
• Hangzhou, 中国
© Chenhao
查小文茶客厅(四寒茶舍)是AIR Architects在杭州南宋古建筑社区——大井巷的第二个落成项目,设计目标是通过对建筑和室内的改造,得到一隅自然轻松的饮茶体验空间。项目委托方是杭州资深的茶文化传承人和茶道家,他们对于设计的要求只有一个词——“真实”。
© Chenhao
轴测图
© Chenhao
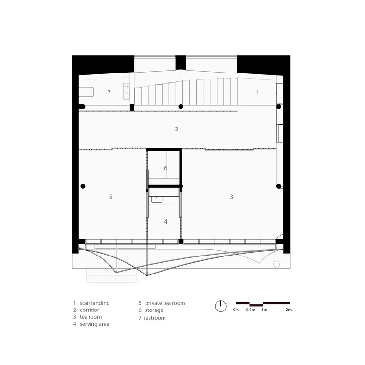
项目主体是一个木质与混凝土混合的结构,分为上下两层。其中一层是茶客厅的商店部分,主要功能是对货品的展示售卖和茶叶品尝。二层则由两个私人茶室组成,大一点的用作茶会和小型集会,小一点的则只供内部使用,是茶人自省、事茶的一方天地。
© Chenhao
建筑立面的形式处理的尽量内敛简洁,但在透光材质的选用上费了一番周折。光泽,柔度,透光性,成型度,耐候性等一众指标都成为筛选材料的限制条件,最终在施工方材料专家的协助下从二十种样品中选出最能表达设计意图的一片。透光的幕墙设计,主要目的是将光线收集,并柔和的释放到茶室内部。这样的做法是希望光线以一个恒定的状态进入室内,即使是盛夏的午后,抑或梅雨的黄昏,光线都先在立面的网幕上集结,以匀质的态势将光影一层层晕染到室内的材质和器物表面。光滑,润泽,粗粝,清亮,细腻,油润,高古,这些丰富的质感得以释放,而这也正是我们所理解的“真实”,即事物的本相。
© Chenhao
半透明的材质在强光下显现纯白色,配合屋顶的深灰色,于白墙黛瓦的建筑群中消融,消失不见。在黄昏时,暖色的室内灯光渐渐溢出,白色转为透明,茶香氤氲升腾,为小巷添一份烟火。
© Chenhao
平面图
© Chenhao
任何事物都无法孤立的存在,建筑亦如此。茶客厅与周遭环境的和谐状态是被仔细关注的。她的颜色,材质,形制都来源于周围的环境。改造后的新生命依然属于这片土地,并参与到环境的公共生活中去。
© Chenhao
透明的曲面橱窗玻璃诚实的展示室内内容的同时,也反射丰富的街道环境,这场景中还包括观察者自己。长石台(concrete deck)被设计成一列户外的座位,为社区居民和来访的游客提供一个休憩的场所,配合边上的树荫,使得人与建筑也能很好的互动。对于茶客厅细节的雕琢和表情的塑造,希望其为街区带来一些新的内容,并承担起一部分公共功能。这样大家就会欢迎她,喜爱她,并乐意与其长久的生活在一起。
© Chenhao
室内的选材多以低对比、低饱和的原生材料为主,也是对“真实”的一种回应。朴素的颜色,谦虚的质感,弱化本我的同时如同一面镜子,映射观察者的心境。
文字说明由建筑师提供。
翻译:王天钰
© Chenhao
数据来源:Archdaily,前往原文链接:https://www.archdaily.cn/cn/956606/hang-zhou-si-han-cha-she-air-architects
