杭州, 中国

    • 建筑师: GLA 建筑设计 ; GLA 建筑设计
    • 面积 该建筑项目的领域 面积:  150 m²
    • 项目年份 该建筑项目的竣工年份 项目年份:  2017
    • 厂家 该项目中使用产品的品牌 厂家:  Alucobond, CSG, Centria, Haitai, Jumin, Samsung, Shunxin, TAIWANGLASS, XYG


    英飞特电动汽车充电站位于英飞特杭州总部基地大楼北侧,是该企业光电转换充电技术的一个示范样本,也是为该区域的公众服务的一处公共配套。建筑师需要在此建设一处能够与电动汽车的时代背景相呼应、又能实现如传统“加油站”般进行快速标准化建造的技术试点。

    通常情况下“电”是不可见、更不可触摸的。然而这一实验性项目业主主攻产品恰好是LED光电驱动领域,于是由电驱动的各式人工光成为了这一建筑设计的主要可视化语言载体,以此传达正在悄然发生的传统化石能源驱动向新能源驱动转换的时代趋势,并通过标准建造、技术复合、开放姿态这三种策略来对充电站的建造、结构与形式进行回应。



    剖面

    建筑屋面主体采用表面红色与灰色的铝塑复合板表皮、LED屏及人工光源,使其既具有明显的的视觉识别性,同时也延续了传统汽车加油站以红色为主色调的一种传统。然而充电站屋面的20米大悬挑,则与传统的加油站全部立柱落地形成强烈视觉反差。这一举重若轻、对抗重力的漂浮姿态呈现出一种互联网时代、更为开放、透明的时代气质,也表达出了这一充电站对于使用者的迎接态度。



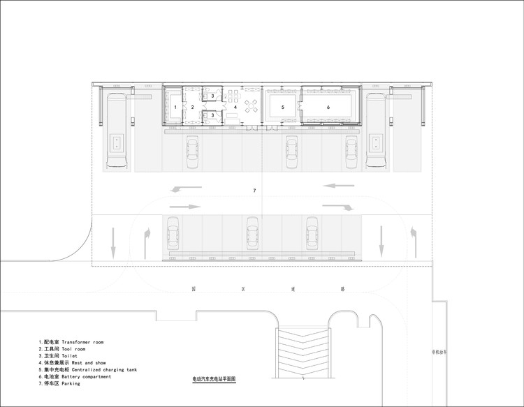
    首层平面


    英飞特充电站除了需要进行光伏发电向车辆供电的技术验证,同时也面临着将来充电站大范围推广所需要的快速建造技术验证,因此项目需要在紧凑的空间中同时满足设备展示、能源转换、大巴车及小型车停放充电、客户休息等多种功能,另一方面又需要在在预制建筑构件模块内整合各种给排水、强弱电、空调、结构、光电转换、蓄能电站等技术单元和模组。因此无论是建筑主体、室外幕墙、还是室内空间,全部构件均采用模块化设计方式,在工厂完成标准部件的生产后,即可现场快速拼接吊装。这种精细化的设计与建造方式减小了现场施工强度,提高了建造效率,也能适应于不同的场地需求,从而为未来实现该系列充电站的大范围快速推广提供了技术保障。


    项目地面采用了整体感强的水泥金刚砂,室内外墙体和屋顶均采用由钢骨架和铝复合板组成的标准部件。屋面则以铝镁锰合金屋面系统结合太阳能光伏系统构成了能源发生器。


    数据来源:Archdaily,前往原文链接:https://www.archdaily.cn/cn/888179/hang-zhou-ying-fei-te-dian-dong-qi-che-chong-dian-zhan-gla

    声明:本站所有资源,如无特殊说明或标注,均收集于网络,且无法追溯原作者或持有人。任何个人或组织,在未征得本站同意时,禁止复制、盗用、采集、发布本站内容到任何网站、书籍等各类媒体平台。如若本站内容侵犯了原著者的合法权益,可联系我们进行处理:bigsone@qq.com。