© Kota Inokuchi
- 建筑师: 竹中工务店
- 面积 该建筑项目的领域 面积: 5443 m²
- 项目年份 该建筑项目的竣工年份 项目年份: 2018
- 摄影师 摄影师: Kota Inokuchi, Tomoki Hahakura, Takuji Yamamoto
- 厂家 该项目中使用产品的品牌 厂家: GRAPHISOFT, MIURA, MT.METALIX, Nikko sash, Seibu Steel, TOPRISE, YKK AP Asia
- Lei Bie: 办公设施, 展厅
- 主持设计师: Masaomi Yonezu
- 设计团队: Takenaka Corporation, Etsuo Kurata, Masaomi Yonezu, Takuji Yamamoto, Naoki Nomura
- 客户: Miura Construction
- 展览设计: Total Media Development Institute Company Limited
- 城市: 松山市
- 地区: 日本
• 松山市, 日本
© Tomoki Hahakura
“一水三态”-因水方案而闻名于日本的三浦商事株式会社委托了此项目,希望以独特的设计来诠释自己的品牌,让来自世界各地的参观者都能领略自身的品牌魅力。
建筑形式相得益彰地体现水的三种状态:固态,液态,气态。
三浦公司希望将此种理念传达给参观者。因此设计师以水为媒介,设计了这个展览与建筑浑然一体的陈列室,为参观者提供丰富的空间体验。
© Tomoki Hahakura
一楼平面图
© Tomoki Hahakura
充分地与水沟通-为了使参观者在游览途径中感知水的无处不在,设计师将整体建筑临水而建,以横跨户外水池的廊桥连通入口暨办公区和展览区。展览区建筑45度内倾并向上抬升,既加强了两个区域相连空间的纵深感,又为入口区引入了自然光。展览区建筑边沿增设了开口,利于水池上的反射光进入内部展厅。
© Tomoki Hahakura
参观者入口大厅-入口区向上延伸形成一个大顶篷,以示对参观者的欢迎。入口大厅中设计了开窗,既可引入外部光线,也便于观赏户外水池上的美景,譬如对面展览区的倒影和铝合金钢板反射到水面上的光。
© Tomoki Hahakura
引入水与光的中庭-中庭上空设置了一个休息区,连通了几个独立的办公空间,也通向展览区。休息区配置了巨大的玻璃幕墙和顶灯,增强了整个建筑与水、光和空气的亲近感。
© Tomoki Hahakura
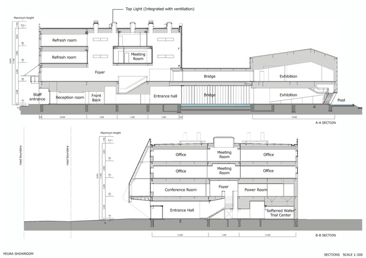
截面图
© Tomoki Hahakura
浮在水池上的结构-展览区的四个侧面中有两个凌空悬在水池上,没有任何支撑。二楼的刚板桁架结构则悬挂在屋顶梁上。建筑斜背之下重达54吨的地基平衡了悬挂结构,抵御了结构荷载,又能保证抗震性能。
© Tomoki Hahakura
建筑与展览互为一体的体验-展厅的设计将水池上的反射光引入室内,提供了柔和的自然光。四层通高的中庭利于通风,水池上的冷气由下层的开窗进入空间内部,上升的热气则从顶灯处的开口排出。以水为象征的三浦品牌将“水”元素贯穿整个游览线路之中,以“水一体方案”呈现出别样的建筑空间体验。
数据来源:Archdaily,前往原文链接:https://www.archdaily.cn/cn/939225/san-pu-chen-lie-shi-shui-de-san-chong-xing-tai-takenaka-corporation
