© 张骑麟
- 室内设计: PAL Design ; PAL Design
- 面积 该建筑项目的领域 面积: 1577 m²
- 项目年份 该建筑项目的竣工年份 项目年份: 2017
- 摄影师 摄影师: Qilin Zhang
- 厂家 该项目中使用产品的品牌 厂家: Arte, Baishite, DuPont, Formica, Kemet Interior Materials
• 深圳, 中国
© 张骑麟
设计将深圳侨城一号 SKY CENTER 营销中心蜕变成凋塑, 以线和面演绎空间的张力,突显现代建筑的风格与气质。几何线条、黑白灰色调与自然光互为依托,打破沉闷常规,成就性格。设计和艺术最重要的作用就是连接有形与无形。使观众经历一种时间与空间安详对视的感受与感知,背后是生活态度的阐释。主案设计师希望满足公众对于空间视觉冲击的欲望,洗去往昔营销中心的商业痕迹,不以模型区为焦点而是先进入情景理解整个项目背后的故事,再前往模型区,颠覆旧有销售概念。
© 张骑麟
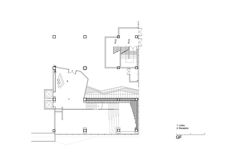
首层平面图
迈进大堂楼高两层的落地玻璃天然光线无阻拦地流淌同时引入室外绿荫营造满眼绿意,灰色和白色大理石以不规则形状拼凑出强烈对比,大理石的独特纹理轻描地缓和了视觉冲击;破沉闷常规,大门以黑钢线条排列而成,强调型格品味。
© 张骑麟
突显现代建筑的的韵致,以书架的概念延续至天花形成波浪,边框用黑钢突出整体线条,并将空间的光源藏于隔间内,灯光与天然光线在室内折射;不仅为空间注入节奏感,而且在不同角度观赏,平面与立面共砌的动态均有不同效果。
© 张骑麟
大堂与洽谈区之间简约地以白色大理石轻描的遮隔,绕过楼梯进入展览区,如同艺廊可注入独有的建筑艺术元素并不时转换摆设;设计师故意将营销中心动线进程设计深邃迂迴些许,令人不自觉停歇观赏。经过影视室后进入模型区,延续时尚型格的气派。
内立面图
© 张骑麟
洽谈区天花则承载大堂的特色设计,大器而文雅,以书架的形式构筑成特色牆,加上黑钢勾勒出线条,继而延伸到天花衍生出波浪。
© 张骑麟
数据来源:Archdaily,前往原文链接:https://www.archdaily.cn/cn/896014/shen-zhen-qiao-cheng-hao-sky-center-pal-design
