© Timothy Kaye
- 建筑师: Studio-Gram
- 项目年份 该建筑项目的竣工年份 项目年份: 2021
- 摄影师 摄影师: Timothy Kaye
- 厂家 该项目中使用产品的品牌 厂家: 1K Chairs, Astra Walker, Brodware, Cult, Koda Lighting, Rogerseller, Snelling Studio, Transforma
- Lei Bie: 独立住宅, 住宅室内设计
- 项目建筑师: Dave Bickmore
- 设计建筑师: Graham Charbonneau
- 建筑设计: studio gram
- 城市: Rose Park
- 地区: 澳大利亚
• Rose Park, 澳大利亚
© Timothy Kaye
玫瑰花园之家从建设开始到结束,最好的描述就是一个探索的项目。从街道上看,这座 1900 年代初期的安妮女王别墅与其他别墅无异,然而在表面之下,一系列的空间设计在功能和表达上是独特的,但在方法上是始终如一的,从而造就了一座完全出乎意料的建筑。早期的调查显示,原始住宅的墙壁是由脱模混凝土建造的,使其成为就其年代和位置而言独一无二的建筑。这一发现成为该项目的材料方向关键。
© Timothy Kaye
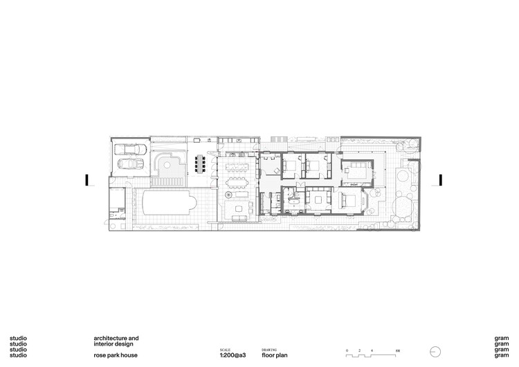
平面图
© Timothy Kaye
为了保持原有住宅的完整性,平面只进行了细微的改动,只纳入一个主翼,其中包括一个步入式衣帽间和套房。中央走廊保留了住宅原有的空间布局,并引导人们走上一条探索之路。每个房间都探索了色彩和材料的用法,来唤起与其功能相近的感觉。酒室通过使用丰富的勃艮第色来体现这一点,这是客户印象深刻的葡萄酒收藏的庆祝方式。
© Timothy Kaye
剖面图
© Timothy Kaye
现有的游泳池被保留了下来,虽然它不能令人一见钟情,但它是扩建部分的位置和安排的一个关键驱动因素。游泳池的柔和曲线后来也成为每个空间的雕塑形式的主要灵感来源。作为对游泳池、它的曲线形式以及它在项目的审美方向上所扮演的角色的微妙致敬,游泳池的图案被刻在了前厅的壁炉上。
© Timothy Kaye
轴测图
扩建部分,也是探索序列中的最后一个房间,是一个启示的时刻。一个波浪形的造型成为原来的住宅和扩建部分之间的过渡,庆祝新旧的融合。弯曲的舱壁给人以沉重而柔软的感觉,是一个压缩和释放动作的范例。墙壁和天花板上的孔隙在天空和花园之间建立了联系,让居住者有机会见证花园的短暂性和季节性变化。
© Timothy Kaye
其结果呈现了一个在平面上高度解析,但在剖面上却真正唱响的住宅。门槛的雕塑感突出了从一个空间到另一个空间的行为,形成了一个完全意想不到的建筑。脱模混凝土专门用来支撑亭子的形式,由三部分组成:天井上的平顶、倾斜的"头锥"和锥形的叶片墙。这三种形式都是由单一的混凝土浇筑结合在一起的。
© Timothy Kaye
© Timothy Kaye
充分利用其后方的北面,混凝土 "头锥 "升起以迎接正午的阳光,邀请温暖和阴影投射到室内,进一步增强了形式的同质雕塑质量。置身其间,就会想起时间、空间、光线、颜色和质量之间的相互作用——这些现象塑造了我们体验的起伏。
文字由建筑师提供提供
译者:刘若飞。
© Timothy Kaye
数据来源:Archdaily,前往原文链接:https://www.archdaily.cn/cn/993608/mei-gui-hua-yuan-zhi-jia-studio-gram
