© Jérôme Ricolleau

    Lyon, 法国

    • 建筑师: Atelier Didier Dalmas ; Atelier Didier Dalmas
    • 面积 该建筑项目的领域 面积:  1168 m²
    • 项目年份 该建筑项目的竣工年份 项目年份:  2016
    • 摄影师 摄影师: Jérôme Ricolleau
    • 厂家 该项目中使用产品的品牌 厂家:  GUILLON, LENOIR
    • Lei Bie:  市场
    • 预算评估:  CUBIC
    • 消防安全:  Nicolas INGÉNIERIE
    • 结构顾问:  COGECI
    • 工程顾问:  ARBOR&SENS
    • 主创建筑师:  Didier Dalmas
    • 城市:  Lyon
    • 地区:  法国



    © Jérôme Ricolleau

    在新 ZAC “里昂交汇二期”中,A3作为模范区域最早被开发。其目的是开创邻里之间新的生活方式。

    © Jérôme Ricolleau

    在ZAC里,A3区域有着得天独厚的地理位置。在其一侧,是面朝汇集区主干道:查理曼林荫大道,而在另一边是城市中心广场:在中心区的南侧,面朝着城市酒店。

    © Jérôme Ricolleau

    作为工业建筑,旧市场“Halle auxfleurs” 被政府完整地保护起来。这验证了旧时的商业文化以及提供了不同形式的机遇。

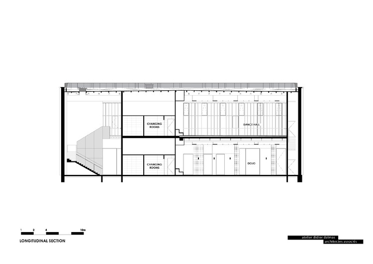
    剖面图

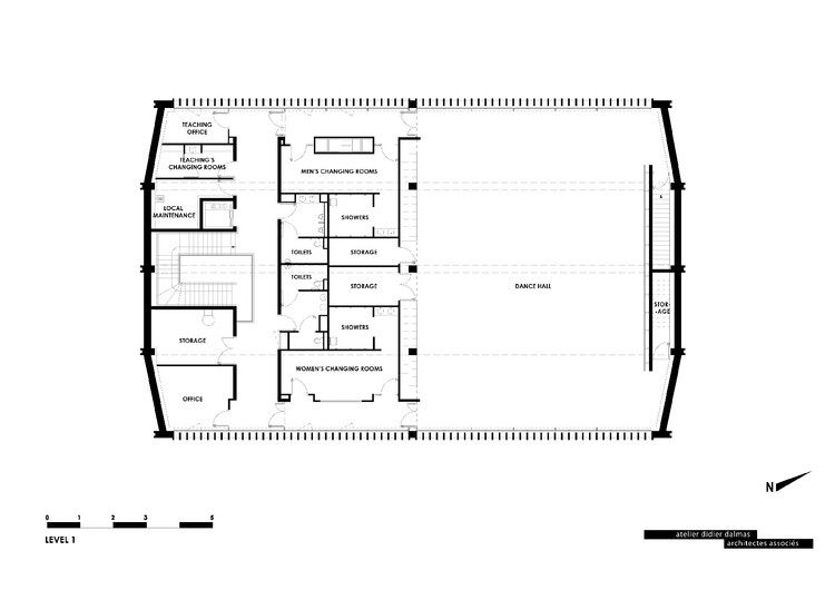
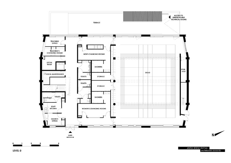
    而这一次的改造项目是将原有的旧大厅改为活动场馆:其中包括了一个道场,一个舞蹈房,办公室,更衣室以及为各个活动场馆配备的卫生间。

    © Jérôme Ricolleau

    该建筑曾被作为国家利益市场的产物进行拍卖,但未能成功,最终被用于鲜花批发销售市场。建筑被赋予了一个独特的空间形态:在双层高的混凝土结构下,因为由前后排列的台阶所组成的双层主席台,从而形成特殊的空间效果。

    © Jérôme Ricolleau

    混凝土制的开窗给拂过一层东南侧的阳光放行。为了让卸货卡车出入自如,在西北边的外立面上设计了一个大开口。

    底层平面图

    一层平面图

    改造还同时包括了在保留原有的外墙和结构的基础上,拆除内部的混凝土。为了加强混凝土主体块的表达和更好的将自然光引入室内,施工队拆除了建筑两侧的倾斜通道。

    © Jérôme Ricolleau

    如此空旷的建筑提供了足够的空间,为新的场馆规划作准备。中间新增一整层的楼板,空间根据各个场馆的需求进行分割:每一层一半的面积都属于活动场馆(位于RdC的道场和位于R+1层舞蹈房)。其余空间则被用作各个活动场馆的更衣室,卫生间以及办公室。

    © Jérôme Ricolleau

    在建筑材料的选择上,设计师尊重原有建筑所持有的工业风,在立面上使用了未经处理的混凝土,木材镶板以及木质纤维的隔音天花板。相似的处理方法同样的运用在老建筑结构上。 当然,从建筑的各个角度都得以体现。

    © Jérôme Ricolleau

    除此之外,为了保留建筑的原始面貌,其内部隔热层是由细刨花所填制的。而为了保持其粗糙混凝土质感,外立面仅加建了一层淡灰色的无机玻璃。

     

    翻译:谢怀元

    数据来源:Archdaily,前往原文链接:https://www.archdaily.cn/cn/878454/liu-you-xian-hua-shi-chang-de-yu-xiang-de-ti-yu-guan-flower-market-atelier-didier-dalmas

    声明:本站所有资源,如无特殊说明或标注,均收集于网络,且无法追溯原作者或持有人。任何个人或组织,在未征得本站同意时,禁止复制、盗用、采集、发布本站内容到任何网站、书籍等各类媒体平台。如若本站内容侵犯了原著者的合法权益,可联系我们进行处理:bigsone@qq.com。