© David Zarzoso

    Alboraia, 西班牙

    • 建筑师: Francesc Rifé studio ; Francesc Rifé studio
    • 面积 该建筑项目的领域 面积:  400 m²
    • 项目年份 该建筑项目的竣工年份 项目年份:  2017
    • 摄影师 摄影师: David Zarzoso
    • 厂家 该项目中使用产品的品牌 厂家:  &Tradition, Francesc Rifé, Santa & Cole
    • Lei Bie:  杂货店
    • 协作者:  Espacios & Proyectos
    • 城市:  Alboraia
    • 地区:  西班牙



    © David Zarzoso

    该项目位于 Brassade Ma r餐馆的二层,其核心设计理念旨在突出始创者的美食价值观念——没有承接传统理念,就没有对现代性的启发。我们意图使餐馆朝着理性而简约的方向过渡,正如同裸露的材料本身,或如同餐馆配方的主要成分——稻米那样直接明了。

    © David Zarzoso

    项目在棕色色调和格栅形式二者间展示一种平衡的姿态。格栅既可以固定又可以活动,这样的构造使餐馆通过一种灵活且动态的方式,完全变为一个方正且素雅的空间。

    © David Zarzoso

    诸多因素决定了项目设计的布局。一方面,餐馆早晚均营业开放。另一方面,餐馆周围的自然环境及宽敞的落地窗使和煦阳光得以自然流通。此外,将空间细分以方便举办小型活动或集会。

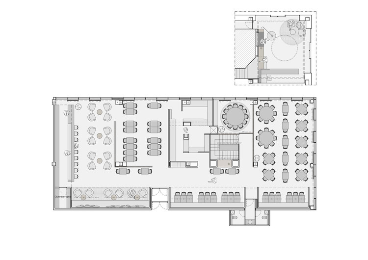
    平面图

    杨树木制格栅的颜色搭配同样重要。这种木材很轻便,有利于活动格栅的移动。从立面的格栅线条出发,通过外部以一种象征性的形式向内伸展,贯穿经过分化的餐厅,直至得到目前的格局。它的半透明性使得不同时间段的阳光更加柔和,同时也为顾客提供了充满诗意的海景景观。

    © David Zarzoso

    这些移动的元素在房间内不停地重复直至转化为固定的墙面。它们的主要作用是把空间细分为不同尺寸大小的区块,如此便可把私密性较强的就餐区从密集就餐区中划分出来。

    © David Zarzoso

    作为辅助材料,灰色的混凝土统一了地面之前的铺装,在空间上营造出了一种素净的连续性。平静开阔的海面与稻香俱乐部融为一体,棕色色调与木材质地格外突出。

    © David Zarzoso

    从实用的角度考虑,位于二层的空间,从外部经由相连通的一层方可到达,所以均采用了和二层完全相同的材料语言。我们将接待处与候餐椅联系了起来,前者负责分配顾客去稻香俱乐部或是去露天平台,后者则依次成为阶梯的一部分。迎面进入便可看到一盏巨大的吊灯,这是专门为项目而设计的,它被想象成是一种转化功能的要素以及一个妙趣横生可向不同空间转化的机制(稻香俱乐部,露天平台,通向众多厨房中的任意一个)。

    © David Zarzoso

    楼梯的垂直空间连同二层的厨房在结构上起到了核心部分的作用。经由墙所分隔的厨房与餐馆其他部分的语言相一致,其独特之处在于双路径的进入方式。其中的一条路径的入口可以被视为一艘船的舷窗,通过它可依稀窥得其内部的景象。以厨房为中心分布着其他不同的区域。餐馆的南部等级较高,这部分区域是用来举办人数众多的聚会活动。同时,这部分还涵盖了预定就餐的保留区。餐馆的北部由两部分组成:一旦厨房饱和运转,还有一处通过格栅与Gastro酒吧相连的厨房。

    © David Zarzoso

    宽大横卧的吧台和地面一样是由混凝土制成的,尽管与低矮座椅的结合使得来访者们得以从舒适的角度感受空间,但它仍在视线上占据了大部分区域。一侧的沙发直面整个Patacona海滩。卫生间和紧急出口的位置均临近嵌入了长凳的隔间区,这些隔间亦可用来摆放更多的桌椅。这是一种既严谨又灵活且固定的设计装置。

    编辑:韩爽     翻译:王智睿

    © David Zarzoso
    数据来源:Archdaily,前往原文链接:https://www.archdaily.cn/cn/871486/dao-xiang-ju-le-bu-star-star-brassade-mar-francesc-rife-studio-star-star

    声明:本站所有资源,如无特殊说明或标注,均收集于网络,且无法追溯原作者或持有人。任何个人或组织,在未征得本站同意时,禁止复制、盗用、采集、发布本站内容到任何网站、书籍等各类媒体平台。如若本站内容侵犯了原著者的合法权益,可联系我们进行处理:bigsone@qq.com。