© Bruce Damonte

    旧金山, 美国

    • 建筑事务所: WORKac
    • 面积 该建筑项目的领域 面积:  300000 ft²
    • 摄影师 摄影师: Bruce Damonte
    • 厂家 该项目中使用产品的品牌 厂家:  AEP Span, C.R. Laurence, Carl Stahl, Ellison Bronze, Florim, PPG, Panda Windows & Doors, Royal Glass, Saint-Gobain, Sherwin-Williams, Tnemec, Walters and Wolf, Wausau Tiles, Wilsonart
    • Lei Bie:  居住建筑
    • 首席建筑师:  Amale Andraos, Dan Wood
    • 项目建筑师:  Matt Voss
    • 主持建筑师:  Wuyahuang Li
    • 设计团队:  Zahid Ajam, Nevin Blum, Ania Yee-Boguinskai, Leslie Dougrou, Vildana Duzel, Troy Lacombe, Poyao Shih, Christopher Stoll, Hena Wang
    • 结构团队:  Thornton Tomasetti
    • 执行建筑师:  Adamson Associates Architects
    • 立面顾问:  Heintges & Associates
    • 灯光顾问:  Pritchard Peck
    • 景观顾问:  GLS
    • 可持续顾问:  Brightworks
    • 城市:  旧金山
    • 地区:  美国



    © Bruce Damonte

    米慎洛克大楼 B 座通过促进室内与室外空间的无缝连接,重新构想了未来工作场所的样貌。其八层楼设有层叠式雕刻花园,这些花园既是充满活力的办公空间,也是户外会议区域,鼓励大楼使用者置身于葱郁的绿植和旧金山迷人景观中工作。大楼采用灵活的设计,设有两个偏置核心筒和沐浴在自然光中的宽敞楼层板,非常适合各种租户,从传统商业空间到生命科学公司均可入驻。雕刻而成的建筑立面部分融入了磨砂玻璃,增添了一种独特且有质感的元素,同时为低层内部空间提供了额外的自然光。WORKac 在每层楼均设计了开放式、无性别限制的卫生间,确保隐私和包容性。

    © Bruce Damonte

    立面图

    B 座被构想为一系列水平移动的楼层,创造出一种动态的地形感,反映了其所在旧金山的地理位置和生态理念。水平楼层通过一系列雕刻而成的花园垂直相连,这些花园成为户外会议室,使人们在工作日能够进行创造性思考、协作和充电。

    © Bruce Damonte

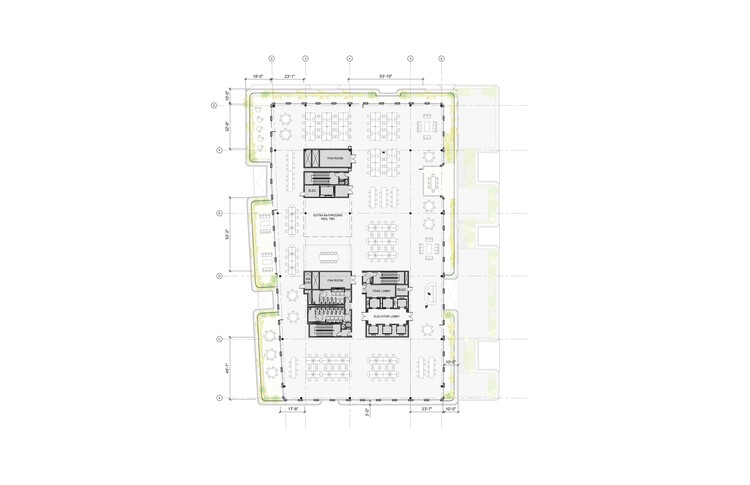
    二层平面图

    WORKac 与 GLS 景观公司合作设计露台景观,花园和露台层层上升,景观也随之变化,从茂盛的植被过渡到耐寒抗风的肉质植物。这些露台和绿色花园还充当着相邻高楼的“第五立面”,提供如公园般的屋顶空间景观。花园类型和大小的多样性,再加上层叠式设计,共同作用将建筑尺度缩小至街道级别,视觉上将玛雅·安吉罗博士巷和米慎洛克广场充满活力的社交生活与 B座的阶梯式露台和整个开发项目的动态天际线相连。

    © Bruce Damonte

    © Bruce Damonte

    建筑构造所产生的充满活力的层次感和动感,通过其材质和景观得到了进一步强调。虽然建筑整体的轻盈色调和单色质感凸显了其雕塑般的品质,但仔细观察会发现,预制外墙材料的纹理呈现出渐变效果,随着像窗帘一样起伏的波纹和深邃阴影而变化。底层店面被构想为一扇生动的玻璃幕墙,时而向外延伸至人行道,邀请路人进入;时而向内收缩至室内,提供遮阳座位和片刻的休憩时光。宽敞的自行车存放室为建筑使用者提供了另一种通勤选择,与位于第三街的米慎洛克 BART 站相辅相成。

    © Bruce Damonte

    剖面图

    可持续性:在米慎洛克的设计中,可持续性是一个核心目标。鉴于旧金山湾海平面上升的预期,整个开发项目被抬高了 5 英尺。B 座获得了 LEED 金牌认证,并配备了一套黑水处理系统,该系统接收来自米慎洛克开发项目内厕所、水槽和淋浴间的黑水。黑水回收系统设计用于每天节省 50000 加仑以上的水,用于非饮用水用途,包括灌溉和冲厕。

    © Bruce Damonte

    地理位置:WORKac 的 B 座是 Tishman Speyer 和旧金山巨人队领导的 28 英亩米慎洛克再开发项目的一部分。这个新社区取代了以前的沥青停车场,为公众提供了前所未有的通往旧金山湾的机会,并为该市中央滨水区引入了 500 多套新房和 60 万平方米的零售及办公空间。米慎洛克的第一阶段包括由中国城市规划设计研究院(SCAPE)设计并于 2024 年 4 月开放的新 5 英亩公共公园——中国盆地公园,以及四栋由国际知名建筑公司设计的新建筑。除了 B 座外,第一阶段还包括由 MVRDV 设计的住宅建筑“峡谷”(于 2023 年 6 月开放)、由 Henning Larsen 设计的威士信用卡全球总部新址(于 2024 年 6 月开放),以及由 Studio Gang 设计的新住宅建筑 “Verde”(于 2024 年 6 月开放)。

    © Bruce Damonte

    七层平面图

    © Bruce Damonte

    这些建筑以其生态意识设计呼应了旧金山动态的地形。底层设有延伸的店面,配以生动的玻璃幕墙,店面均为公众提供了舒适的座位,让人们得以放松并享受米慎洛克所提供的充满活力的街道生活。

    © Bruce Damonte
    数据来源:Archdaily,前往原文链接:https://www.archdaily.cn/cn/1022661/mi-shen-luo-ke-da-lou-b-zuo-workac

    声明:本站所有资源,如无特殊说明或标注,均收集于网络,且无法追溯原作者或持有人。任何个人或组织,在未征得本站同意时,禁止复制、盗用、采集、发布本站内容到任何网站、书籍等各类媒体平台。如若本站内容侵犯了原著者的合法权益,可联系我们进行处理:bigsone@qq.com。