© Weiqi Jin
- 建筑师: 建筑营设计工作室
- 面积 该建筑项目的领域 面积: 564 m²
- 项目年份 该建筑项目的竣工年份 项目年份: 2024
- 摄影师 摄影师: Weiqi Jin, Ning Wang
- Lei Bie: 青年旅舍, 独立住宅
- 主设计师: 韩文强、李晓明
- 项目设计师: 郭建刚、雷馨、王亦开(实习)
- 结构咨询: 北京欣南森木结构工程有限公司
- 机电咨询: 郑宝伟、李东杰、张英男
- 图片编辑: 雷馨、王同辉、王瀚锋
- 施工团队: 北京欣南森木结构工程有限公司
- 城市: 北京
- 地区: 中国
• 北京, 中国
© Ning Wang
村庄与场地
项目位于北京市平谷区峪口镇北杨家桥村。这里是较为典型的北方平原乡村,多为合院式民居。随着村庄自发性更新的加快,临街出现各式样的新房子,有小洋楼,也有彩钢板房,已经不再是传统民居街道风貌。
© Ning Wang
© Ning Wang
基地东侧比邻村庄主路,占地约 400 平方米,是一个东西向长,南北向短的长方形地块。原始建筑格局较为混乱,分别为坡顶和平屋顶砖混建筑以及部分彩钢板临建房,已经没有保存的价值。基地内有两棵柿子树和一棵核桃树,是户主父亲儿时种下的。如今依然硕果累累、生机盎然,已经成为重要的家庭生活记忆。这三棵树经过设计师与户主共同协商,决定予以保留。
© Ning Wang
© Ning Wang
需求与限制
平谷区良好的自然资源、接地气的田园生活以及周边自然景点都是这个民宿对于城市客人的吸引力所在。而民宿作为城郊旅游的一个节点,也应该传递出乡村生活质朴、自然、放松的环境气质。设计伊始,户主就提出了明确的功能诉求,即这里未来将作为民宿对外运营。需要客房尽量不少于七间,其中一间由户主的母亲自住。不仅要兼顾团建与散客的接待需求,配置中西厨、客餐厅、娱乐室等,还要有老人休闲娱乐的棋牌室。要满足这些需求,新建筑基本上是原有建筑面积的两倍。
模型照片
© Ning Wang
同时必须符合当地规范,即新建建筑檐口限高 7 米、屋脊限高 8.6 米,与邻居不小于 40 公分的间距。所以建筑需要最大化的建筑体量来满足必要的使用功能,同时激发内部空间的活力来勾勒乡村生活的气质。
© Weiqi Jin
© Weiqi Jin
构思与成形
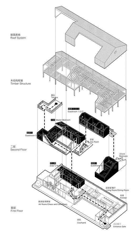
三棵树成为设计构思的起点,也是“耒宿”这一命名的由来。“耒”字来源于古代农用器具,代表着田园农耕的生活状态。其字形里包含了三个木,而类似于树木一般的纵横交织的木构架成为建筑的基本意向。建筑以树成院,围绕原有树木的位置和冠幅构成两个适当尺度的庭院,为内部空间带来充足的阳光和四季更迭的景观,也延续了村落庭院建筑基本格局。建筑主体采用胶合木结构,在双坡屋顶的形态控制下,支撑起高低错落的平台空间,让人产生置身于林间的居住体验。
© Ning Wang
建筑首层沿街边界以实墙围合,内部则向庭院完全开放,布置了客厅、餐厅、厨房等公共休闲空间以及一个户主卧室。二层三个错层平台漂浮于砖墙之上,与姿态各异的树木形成对景,这里布置了六间客房,分为标准客房、榻榻米单人房、loft 亲子房等多种类型。建筑开辟了两处屋顶平台,高处可远眺附近的群山。
© Ning Wang
© Ning Wang
© Ning Wang
材料与建造
可持续、可循环利用作为材料使用的基本原则,造价控制也是重要的考量。木构建筑满足绿色低碳的原则,其本身自带温暖、自然的质感,作为建筑结构的首选。木结构预制装配的建造方式,也有利于施工现场的精度控制,保证完成度。
© Ning Wang
© Weiqi Jin
墙体全部利用现场回收的旧砖砌筑,实现再利用。内部木质隔墙尽量采用建筑与室内一体化的方式,避免二次装修增加造价。屋顶沥青瓦部分延续到二层墙面,如灰色的房子漂浮于围墙之上,强化了建筑的识别性。
© Weiqi Jin
© Weiqi Jin
数据来源:Archdaily,前往原文链接:https://www.archdaily.cn/cn/1029508/lei-su-jian-zhu-ying-she-ji-gong-zuo-shi
