© Thierry Sauvage

    Seoul, 韩国

    • 建筑师: JOHO Architecture ; JOHO Architecture
    • 面积 该建筑项目的领域 面积:  182 m²
    • 项目年份 该建筑项目的竣工年份 项目年份:  2015
    • 摄影师 摄影师: Thierry Sauvage, Jaehyeon KIM
    • 厂家 该项目中使用产品的品牌 厂家:  Albeco E&C, Alto
    • Lei Bie:  零售建筑
    • 总楼面面积:  952.21 平方米 (附加区域: 24.23 平方米)
    • 总建筑师:  Jeonghoon LEE
    • 设计团队:  Bong-Gwi Hong, Jun-hee Cho, Moonyoung Jeong
    • 城市:  Seoul
    • 地区:  韩国



    © Jaehyeon KIM

    来自建筑师。Davich 眼镜连锁店是韩国最具代表性的眼镜连锁之一,全韩已有百家以上的分店,提供各种价位的眼镜。该项目的客户要求我们让该品牌除了作为一个特别的眼镜零售店之外,拥有更多独特的建筑个性。也就是说,他们希望该品牌并不只是销售商品的普通眼镜店,而是增添更奢侈的氛围和高端的形象(销售文化产品)。

    © Thierry Sauvage

    轴测图

    早期的概念由镜片的圆圈形状而来。这些重叠的眼镜面板被有意地组合成某种特别地图像。由面板组合而成的图像象征了河流的流动,是该Davich 眼镜连锁店创始人故乡的河的形状,成为该建筑立面的主要灵感。

    © Thierry Sauvage

    场地位于首尔具有代表性的江南地区。该区域附近有密集的住宅和名校,因此会有很多普通居民与学生,十分热闹。尽管该区的居住率很高,但商业设施如百货店、各类零售店等在周围发来。8-land路是连接江南区各个重要地区的一条主路,所以汇集了许多车辆经过这里。建筑所有者期待通过改造能赋予Davich 眼镜连锁店新的形象,并让顾客们在这里获得不同的文化体验。

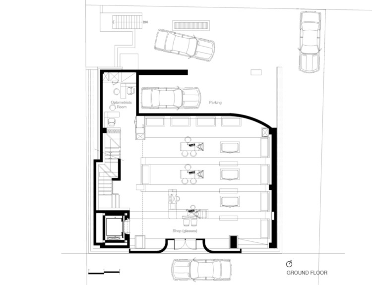
    首层平面图

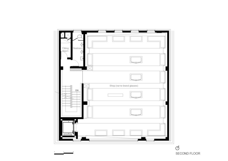
    二层平面图

    三层平面图

    除了展露的建筑正面,另外三个立面也被着重改造。该建筑的高度也被提升到几乎与四周的其他建筑一样,以强调建筑的象征性。背面的第一层按规范要求被设计成车库,屋顶则有不同功能的露台。

    © Jaehyeon KIM

    地下层与地上四层的空间被用于专业验光,提供顾客不同价位的眼镜品牌选择。第二层有一个主要入口,摆放低中价的一般品牌。从这里进入店面的顾客将被安排到对应的楼层。顾客被验光配镜师接收以后,将按照一定的流程如挑选眼镜框架、检查视力、在咖啡店旁等待二次检查。根据不同楼层适当地展示不同种类的眼镜,是该项目最关键的问题之一。在第三层有许多品牌店、奢侈品牌(眼镜与太阳镜),以及第五层的听力辅助及主打品牌(眼镜)。地下层是一个隐形眼镜店,以及让顾客在此等待眼镜制作的咖啡厅。屋顶还有带有投影仪的迷你花园,提供烧烤派对或户外活动的功能。

    © Thierry Sauvage

    建筑立面由三片面板组成。由于该建筑的功能特点,并不需要对外的窗户,因此,靠近结构的一面作为防水和采光的背景面板。3600块眼镜形状的面板在外层立面交错,形成了建筑立面。

    © Thierry Sauvage

    决定了建筑外部图像的眼镜形状面板具有内外两层,被交替排列。将不同开洞大小的面板结合在一起形成覆盖,既丰富建筑立面的质感,也提升了建筑向内的敏感性。一系列变化的光束使得表皮有些微区别。为了强调这种美学效果,面板上超过2mm厚度的铝质被覆盖上熔铸材料。

    © Jaehyeon KIM

    作为中层和外层的面板相互交错,支撑这些面板的支架的排列组装方法,是该结构的重要部分。竖直结构支撑着共3600个面板,水平的支架则从水平方向上连接起来,根据一定的规定和步骤这里还被安装上LED灯。

    © Jaehyeon KIM

    使用内外层面板建造立面的目的主要是防水和采光。其中最难的就是在实现这种结构的同时有足够空间,以保证采光装置的安装与维修。幕墙上照亮背面面板的灯光是重要的设备之一,它照向眼镜面板背面,光线就从面板缝隙之间投射出一些特定的形状。

    © Jaehyeon KIM

    在室内装修方面,我们趋向于继续用外部的立面概念,使用眼镜形状的面板。作为外立面主要材料的Galvalume钢板已被用于展示眼镜产品的室内空间。这些激光切割的立面和黑铁板赋予空间线形的感觉。在混凝土和砂浆地板上还有聚酯材料装饰的线形,使得材料更好地融合在一起。我们选用了极简化设计的家具,代表了室内设计的特点。贯穿室内空间的展柜配有咨询台和视力测试机。

    © Jaehyeon KIM

    整栋建筑以其商业功用和无外部窗户作为最大特点,虽然其实只有三个完全封闭的无窗户立面。得益于三层面板,该建筑在韩国四季温度变化极大的环境下仍能低能耗保持舒适的室内温度。这些三层面板,亦称为多层面板,在夏天将太阳热量吸收进调节面板。此外,边缘的反光玻璃和空调或制暖系统负责确保建筑内的空气流通。我们选用LED灯的原因,不仅在于它们出色的保温性能,节约了夜间广告幕墙所耗费的大量能源,还在于它们在装置和维修方面的低价特点。

    © Jaehyeon KIM

    这个改造项目的火灾逃生的出口设计十分重要。除了二层的主要出口,建筑背面的车库处也有一个次出口。指示牌和其他指引帮助人们在火灾情况下及时逃生。灭火器与探测器被安装在室内的主楼梯间。该建筑安装了CCTV设备,以帮助人们有效地管理和处理安全问题。由于安全与安保系统由一个电路连接,所以都受管理者的控制。

    © Thierry Sauvage
    数据来源:Archdaily,前往原文链接:https://www.archdaily.cn/cn/793267/shou-er-davich-yan-jing-lian-suo-dian-joho-architecture

    声明:本站所有资源,如无特殊说明或标注,均收集于网络,且无法追溯原作者或持有人。任何个人或组织,在未征得本站同意时,禁止复制、盗用、采集、发布本站内容到任何网站、书籍等各类媒体平台。如若本站内容侵犯了原著者的合法权益,可联系我们进行处理:bigsone@qq.com。