© Stéphane Groleau

    Orford, 加拿大

    • 建筑师: Anne Carrier architecture ; Anne Carrier architecture
    • 面积 该建筑项目的领域 面积:  430 m²
    • 项目年份 该建筑项目的竣工年份 项目年份:  2016
    • 摄影师 摄影师: Stéphane Groleau
    • 厂家 该项目中使用产品的品牌 厂家:  Groupe PV Concept, Prevost, Soprema
    • Lei Bie:  服务建筑
    • 项目建筑师:  Anne Carrier architecture
    • 设计师:  Anne Carrier, lead architect, Robert Boily B.Arch./ B.Sc.A., Patricia Pronovost architect, Mathieu St-Amant architect
    • 结构土木工程师:  Les services exp inc.
    • 电气设计:  Martin Roy et Associés
    • 景观设计:  Agence Relief Design
    • 承包商:  Construction Longer
    • 委托方:  Société des établissements de plein air du Québec (Sépaq)
    • 主创建筑师:  Anne Carrier architecture
    • 城市:  Orford
    • 地区:  加拿大



    © Stéphane Groleau

    该建筑根据周围特殊的地形和地貌,将自身与环境紧紧的融合在一起,并通过玻璃幕墙提高了室内外的通透性。建筑材料和颜色的混合运用区分了不同的空间属性。

    © Stéphane Groleau

    场地和空间组织
    该建筑坐落于森林之中,不远处便是细长的小路和湖泊。它的前半部分沿着室外的阶梯圆形剧场缓缓延伸,种满植被的屋顶逐渐抬升,与附近的公园互相呼应。建筑在凹形平面的中心位置提供了开拓的视野,可以眺望远处的湖泊,同时此处也是建筑的入口。总体而论,整个建筑提供了出色的视野条件。

    © Stéphane Groleau

    服务区域(包括厨房)的位置较为隐秘,包括露台在内的另外三个功能区间一次分布。 首先,仓储区放置着体育装备,特殊的几何形态便于通往湖泊和运动场地。第二是露台,提供了良好的视野与人流线路。

    第三是屋顶,上升的屋顶坡面提供了观看Mont Chauve自然景观的角度,并且为室内提供了良好的光线。建筑室内外的空间由一系列有顶棚覆盖的步行通道组成,比如小道,台阶,它们将外界环境隔开。

    © Stéphane Groleau

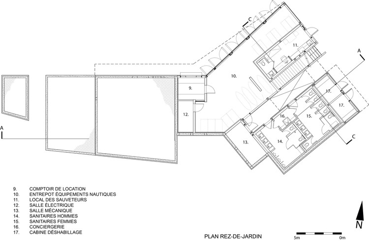
    底层平面图

    © Stéphane Groleau

    建筑材料:各种形式的木制品
    公园内的湖泊,山脉和森林提供丰富的材料灵感。该建筑与周围环境有着非同一般的和谐关系,并大量的运用当地材料。木材给予建筑室内外温和的舒适感。并与当地的植被十分融合。石板岩小道地面装点着建筑周围的景观。

    © Stéphane Groleau

    建筑外立面的设计灵感来自于森林中的枯树枝,由竖直的木覆面构成。它的颜色,材质与树皮十分和谐。精心设计的雪松木覆面覆盖在外立面上,照射在上面的阴影随着阳光的移动而移动。傍晚时分,阳光照在仓储区,犹如巨大的灯笼一般。雪松木覆面也被用于立面的通风和防雨系统中。

    建筑的有机形态与环境结合在一起,建筑体块的开口满足于周围的活动和视野。室内平滑的灰白色雪松木覆面与外立面形成对比,增强了建筑的视觉效果。

    © Stéphane Groleau

    三座建成建筑之一
    Bonnallie服务中心是Anne Carrier建筑事务所在Mont Orford公园内建成的三座建筑之一。

    这座服务中心给予公园特殊的的建筑标识,清晰的建筑表达丰富了公园内的景致,也为使用者提供舒适且自然的休憩环境。

    翻译:徐宁

    © Stéphane Groleau
    数据来源:Archdaily,前往原文链接:https://www.archdaily.cn/cn/888375/bonnallie-fu-wu-zhong-xin-yu-shan-tong-xing-anne-carrier-architecture

    声明:本站所有资源,如无特殊说明或标注,均收集于网络,且无法追溯原作者或持有人。任何个人或组织,在未征得本站同意时,禁止复制、盗用、采集、发布本站内容到任何网站、书籍等各类媒体平台。如若本站内容侵犯了原著者的合法权益,可联系我们进行处理:bigsone@qq.com。