© Fumio Araki
- 建筑师: Moriyuki Ochiai Architects ; Moriyuki Ochiai Architects
- 面积 该建筑项目的领域 面积: 110 m²
- 项目年份 该建筑项目的竣工年份 项目年份: 2018
- 摄影师 摄影师: Fumio Araki
- 厂家 该项目中使用产品的品牌 厂家: Makoto Yamaguchi, Nanzan Ito, aslego
- Lei Bie: 服务建筑, 室内设计
- 施工方: Seiko Service / Aslego
- 陶瓷设计师: Moriyuki Ochiai
- 陶瓷制作: Nanzan Ito
- 特殊喷绘: Makoto Yamaguchi
- 委托方: Spea international
- 设计团队: Moriyuki Ochiai, Jillian Lei,Marie Uno
- 城市: Tokyo
- 地区: 日本
• Tokyo, 日本
© Fumio Araki
建筑师们为一个美容沙龙进行了室内设计。客户要求将空间设计成像亮丽的秀发一样可以散发出光彩的样子。因此,建筑师尝试把天花板用闪亮的水晶制作,将整个空间包裹进光彩之中,就如客户所描述的亮发一般。
© Fumio Araki
金属波浪(更多信息请详见下列描述)象征着发丝流动时产生的明亮,优雅和空气感,被复杂得编织进带有几何图案的白色矩阵之中(一种特地强调出白色和木质纹路的颜色过渡的网格结构),目的是为了让微弱的光线从撞击金属表面之中而散发更多反射光线时,产生一个神秘耀眼的水晶透明感。
© Fumio Araki
光线的发射有着丰富的表达性,更是通过白色网格结构和金属波浪的相交被强调出来;前者穿过空间,像是粼粼闪烁的白色水流,而后者则像是另一条水流,充斥着生动的活泼感。
© Fumio Araki
结构上,白色网格的合成有着3D的网状物体,它们被插进平面网格物体之中。相交的互动使人们对于空间的深度和广度有着更加不同的体验。
金属波浪中被反射出和穿透过白色网格的光线有着复杂而又时刻进化的表达意义。这样层层叠加的结构能够通过不同的观察角度和光线投射而产生不同的视觉效果,令客人们可以体验到不同的空间氛围。
© Fumio Araki
更多的是,建筑师们使人们在这个空间中感知到每分钟间光线的变化,不论是一天之中,还是季节交替。通过精密计算出白色网格和金属波浪交互的方式来增加金属波浪的盘绕感,金属波浪成为剪发区中的反光物体,让最多的自然光进入,也让不断变化的光线纹理最多地被感知到。
© Fumio Araki
通过在中央走廊的天花板上增加白色网格的密度,建筑师们能够缩减天花板的高度,并且破坏原有的韵律,来制造出更加安逸的气氛。当路过这片白色水晶包裹的天花板之下时,人们可以浸没在舒适宁静的环境之中。
© Fumio Araki
另外,在洗发区周围的墙面上,紫色和泛白的银色产生出不同的颜色渐变,象征着在这个空间之中迸发出生命的光彩。
© Fumio Araki
建筑师们尝试向发丝的美感致敬,并且利用反复交织着网格和金属结构,重复强调着充斥着神秘反光和深刻深度的空间体验。
翻译:孙维嘉
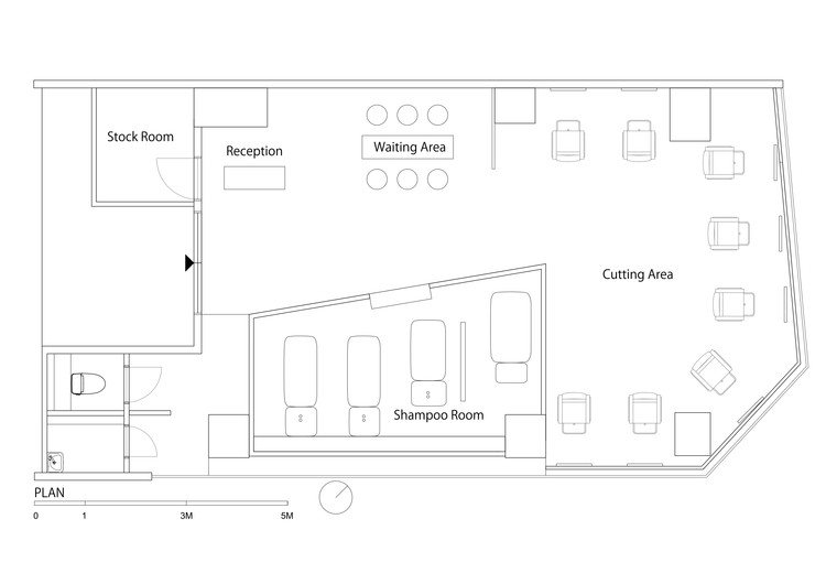
平面图
数据来源:Archdaily,前往原文链接:https://www.archdaily.cn/cn/888363/crystalscape-mei-fa-dian-bi-leng-dan-feng-geng-bing-leng-de-ri-shi-jin-shu-kuang-zou-feng-moriyuki-ochiai-architects
