© Kuvio

    Helsinki, 芬兰

    • 建筑师: Lahdelma & Mahlamäki Architects ; Lahdelma & Mahlamäki Architects
    • 面积 该建筑项目的领域 面积:  66000 m²
    • 项目年份 该建筑项目的竣工年份 项目年份:  2017
    • 摄影师 摄影师: Kuvio, Kuudes
    • 厂家 该项目中使用产品的品牌 厂家:  Ruukki
    • Lei Bie:  购物中心
    • 项目管理:  Haahtela Building Oy
    • 室内设计:  Kuudes
    • 结构设计:  Lujabetoni Oy
    • 元素设计:  Ramboll Finland Oy
    • 技术设计:  Granlund Oy
    • 数字化设计:  Byggnadsekonomi Oy
    • 图形顾问:  Geometria
    • 委托方:  Kesko Corporation
    • 主创建筑师:  Ilmari Lahdelma
    • 城市:  Helsinki
    • 地区:  芬兰



    © Kuvio

     Easton商业中心提供约30000平方米的商业空间供40多家商户入驻,以健康饮食为中心,创造丰富多彩的活动空间,从而满足了当地居民的日常需求。与此同时,中心大厅,儿童游乐场和“充电”场所提高了社交氛围。商业中心位于Itäkeskus区的核心地带,是迈向更大城市战略的第一步,也为当地居民带来了价值和机会。它的建立为社区提供了更多当地饮食和文化交流场所。

    © Kuudes

    “作为位于Itäkeskus区的城市新中心,我们设计的Easton商业综合体为当地社区带来了新的活力”Lahdelma& Mahlamäki Architects创始人Ilmari Lahdelma说道,“面向街道的店面为居民提供了商店,餐厅,休息和社交场所。”为满足当地严格的设计要求,Lahdelma& Mahlamäki Architects运用微微起伏的陶瓷和铝片系统组成了红砖样式立面,在表达当地审美的同时,也使Easton商业中心成为当地发展的点睛之笔。由电脑随机排列的120块不同色调的陶瓷形成了一个个立面单元最终创造出温暖,有质感的马赛克图样。

    © Kuvio

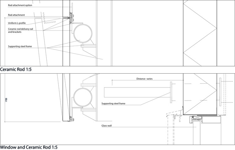
    立面细部图

    © Kuvio

    作为Lahdelma & Mahlamaki设计团队的一部分,当地的设计机构KuudesKerros负责概念设计和室内设计,比如:入口,方位标志和名称等设计。透明的立面设计可以使居民在各个商店间体验不同的感受,放慢了从高速公路到停车场,最后抵达温商业中心脚步。从高度公路上经过,红色外衣下的大型Easton商业中心立刻引入眼帘;行驶在街道上,商业中心外立面上的表示提醒着车主行驶方向;在停车场内,透过玻璃窗可以看到商业中心大厅;300平方米的LED灯墙照亮着餐饮大厅。

    © Kuvio

    © Kuvio

    Easton商业中心毗邻赫尔辛基地铁与高速,同时也是芬兰最大的商业综合体之一,其1240个停车位为当地居民和游客缓解了交通拥堵。中心还与目前的城市功能链接,通过商业步行道链接地铁和现有设施;它将与其他正在开发中的混合功能建筑一起,共同创造一个更加全面的城市功能和结构。Lahdelma& Mahlamaki Architects事务所和其合作伙伴通过BIM软件高度完善项目。在开业之前,Easton商业中心就荣获2017TEKLA BIM奖。Easton商业中心与众多实践项目都在赫尔辛基的列表之中,这些项目包括:芬兰食品安全局EVIRA大楼;Meilahti医院入口, Iiris办公楼和视力修复中心。

    © Kuvio
    数据来源:Archdaily,前往原文链接:https://www.archdaily.cn/cn/885463/easton-shang-ye-zhong-xin-lahdelma-and-mahlamaki-architects

    声明:本站所有资源,如无特殊说明或标注,均收集于网络,且无法追溯原作者或持有人。任何个人或组织,在未征得本站同意时,禁止复制、盗用、采集、发布本站内容到任何网站、书籍等各类媒体平台。如若本站内容侵犯了原著者的合法权益,可联系我们进行处理:bigsone@qq.com。