© LIKYFOTO
- 建筑师: 源计划工作室
- 面积 该建筑项目的领域 面积: 537 m²
- 项目年份 该建筑项目的竣工年份 项目年份: 2012
- 摄影师 摄影师: LIKYFOTO
• 上海, 中国
© LIKYFOTO
来自建筑师。EMG上海设计中心的场地是上海北郊一幢原属上汽集团的六层工业厂房首层北侧的条形空间,面宽约40米,进深7.5米。园区行列式的建筑布局加上毫无个性的室内外空间,似乎难以令人与创造或设计产生联想。建筑设计从原有建筑的内部开始发生,建筑师试图在此引入一种与建造理性相关的自然对话,让毫无悬念的枯燥空间充斥感性和矛盾的游历性,让人得以流连,同时引发思索。这种游历和思考最终通过改造后的外立面——一个31米长、5.3米高的巨型玻璃窗橱向外界展示!
© LIKYFOTO
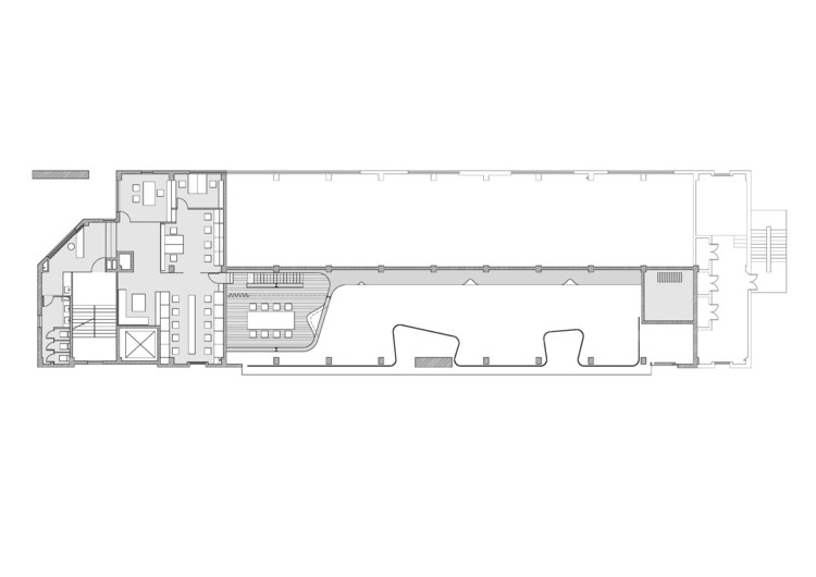
设计中心的日常使用分为展厅和内部办公两部分,首层的展厅由两个区域组成,朝玻璃窗橱开放的展示区域和相对隐匿的酒吧区,内部办公部分则设在酒吧区上方的建筑夹层中。内外两部分空间通过一道沿纵向内墙延伸的黑色曲面墙体分隔与连接,墙体在酒吧区上方向外立面卷曲,在原有夹层空间之外包裹出一个悬空的会议空间,并成为内部和外部使用空间之间的交集。曲面墙体局部自由地外凸或内凹形成多个小型展台,与空间有机互动。展厅的另一面则是一道由413根半透明PVC管构成的通透曲面帘幕,蜿蜒在展厅空间之中,与外立面玻璃幕相互观照,若即若离,不经意间构筑了几个对外场景展示。实与虚、黑与白、动与静的对话在整个空间的中性灰色基调中更具戏剧性,并有效地烘托了石材展示品的天然色彩和纹理。
二层平面图
稍微被抬离地面的巨大立面窗橱在园区狭窄无趣的内街里呈现奇妙的景象:阳光下,窗橱接近一个镜面,反映着周围的城市景象,黄昏或入夜,室内的展示和活动景象则透过玻璃面往外投射。对于外围欣赏的人们,这扇景窗所传递的景色似乎是虚拟的,而对于入内游历的人们,他们的感受却是真实的。
© LIKYFOTO
数据来源:Archdaily,前往原文链接:https://www.archdaily.cn/cn/891397/emgshang-hai-she-ji-zhong-xin-yuan-ji-hua-jian-zhu-shi-shi-wu-suo
