© Beersingnoi

    Bangkok Noi, 泰国

    • 建筑设计: TA-CHA Design
    • 面积 该建筑项目的领域 面积:  1900 m²
    • 项目年份 该建筑项目的竣工年份 项目年份:  2020
    • 摄影师 摄影师: Beersingnoi
    • 厂家 该项目中使用产品的品牌 厂家:  AutoDesk, Forbo Flooring Systems, Lamptitude, Lightup Design, SYS, Trimble Navigation, Trusol
    • Lei Bie:  混合用途建筑, 商业建筑, 居住建筑
    • 责任建筑师:  Waranyu Makarabhirom, Sonthad Srisang
    • 业主:  Pharmahof Company Limited
    • 结构工程师:  Montien Keawkon
    • 翻译:  Gam Tithinun
    • 城市:  Bangkok Noi
    • 地区:  泰国



    © Beersingnoi

    来自建筑师。FH办公室是一个混合功能用途的开发项目,总建筑面积达到了2000平方米。这栋7层的建筑容纳了商业和居住空间,位于曼谷的城市西侧。

    © Beersingnoi

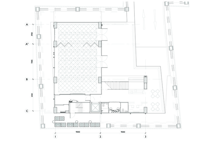
    地面层平面图

    © Beersingnoi

    FH办公室的核心设计概念是在建筑师和业主对话的过程中所产生的。业主虽然是一家制药公司,但并不希望人们每天生病。相反,业主希望所打造的项目能给人们提供一个健康生活的空间环境。这一点在业主的公司内也有所体现,该公司用楼梯代替了电梯的存在,以让公司的员工可以更好地锻炼身体,享受一个健康的生活方式。

    © Beersingnoi

    因而,二元论(dualism)就成为了本次项目的核心设计概念。

    结构 — 后张力平板和后梁结构是该项目核心的两大结构。建筑师借助后张力平板将大楼的主要空间聚合在一起。而后梁结构的使用则使得3x3x3的网格结构变为现实,从而更好地对大楼的室内空间进行了限定。

    © Beersingnoi

    室内与室外— 该公司的一大特征在于不同部门间的协同合作,相应地,公共空间对于业主来说就有着极其特殊的空间含义。建筑师在项目中最大程度地保证了共享空间的通风和采光性能,并将每个办公空间都与中心的公共空间相串联。这样一来,FH办公室的建筑能耗也得以被控制在一个理想的状态。建筑师还在该项目中设计了不少的半室外空间,以最大程度地减少因空气传播而引起的疾病感染(该项目的设计完成时间为新冠疫情之前)。

    轴侧爆炸图

    楼梯— 建筑师还在室内楼梯的美学造型设计上下了不少的功夫,以吸引人们更多地去使用楼梯而非电梯,从而保证他们的身体健康。

    © Beersingnoi

    造型与形态 — FH办公室所处的地区是一个高密度的住宅居住区,排屋这一形式也就成为了该地区的主流空间形态。建筑师以此为灵感,将排屋这一形式转化到该项目中,使得FH办公室跟周围的环境产生了良好的对话关系。与此同时,旋转楼梯的弧度线条也在无形中与排屋的竖直线条形成了一种二元呼应。

    © Beersingnoi
    数据来源:Archdaily,前往原文链接:https://www.archdaily.cn/cn/957951/man-gu-fhban-gong-shi-er-yuan-jian-kang-shi-jian-ta-cha-design

    声明:本站所有资源,如无特殊说明或标注,均收集于网络,且无法追溯原作者或持有人。任何个人或组织,在未征得本站同意时,禁止复制、盗用、采集、发布本站内容到任何网站、书籍等各类媒体平台。如若本站内容侵犯了原著者的合法权益,可联系我们进行处理:bigsone@qq.com。