© Jérémie Souteyrat
- 建筑师: 三井岭建筑设计事务所 ; Rei Mitsui Architects
- 项目年份 该建筑项目的竣工年份 项目年份: 2016
- 摄影师 摄影师: Jérémie Souteyrat
- 厂家 该项目中使用产品的品牌 厂家: Chukei Techno, Knobs & Knockers, WEST inx Ltd.
- Lei Bie: 更新项目, 商店, 公寓室内
- 参数化编程: Yusuke Oono/ Domino Architects
- 结构工程师: Tetsuya Emura
- 城市: Chuo
- 地区: 日本
• Chuo, 日本
© Jérémie Souteyrat
来自建筑师。KANBAN风格:广告牌建筑,于昭和早期建成。通常一楼为零售空间,并且店面带有展示橱窗。
© Jérémie Souteyrat
分析图
© Jérémie Souteyrat
客户的要求很简单。首先,保持广告牌建筑的立面。第二,加强抵抗地震的改造。
© Jérémie Souteyrat
这曾是裁缝店,但关闭已有十多年。现有的建筑几乎废弃,损坏严重。尽管看起来不可能,但客户强烈希望保留原有建筑。我们决定抬升完整的建筑,重建整个基础和损坏的构件。
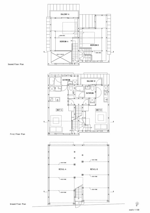
平面图
一层没有任何抗震构件。如果我们选择普通的加固方式,如承重墙或支撑,是不可能保持原来开放店面的立面的。
© Jérémie Souteyrat
我们应用了球墨铸铁制成的拱形框架作为抗震构件,避免了对立面的干扰。编织样的形状来自对结构的分析。每个条状物的直径逐渐变化,遵循结构内部应力。
构造图
生产大量构件时,铸造是最有效的方式,特别是当其形状复杂或富有装饰性时。此外,铸铁适合了现有的旧木材结构,形成了粗糙和温暖的质感。
© Jérémie Souteyrat
虽然为铸铁,但质量很轻,因为极薄极轻的框架来自三维参数化软件(Grasshopper)结构分析。铸铁框架的重量只有55公斤,所以可以人力装配。
*存储空间目前租给EDOKIRIKO玻璃商店。
© Jérémie Souteyrat
数据来源:Archdaily,前往原文链接:https://www.archdaily.cn/cn/793550/kanban-style-yan-gao-pai-jian-zhu-gai-zao-rei-mitsui-architects
