© Rafaela Netto
- 建筑设计: FGMF
- 面积 该建筑项目的领域 面积: 928 m²
- 项目年份 该建筑项目的竣工年份 项目年份: 2016
- 厂家 该项目中使用产品的品牌 厂家: Aris Climatização, Braston, Bricolagem, Ibratin, Inovar Esquadrias, Irrigmaster, JS Pinturas, LIS , Líder Interiores, Pedras Capricórnio, Portobello, Serralheria Forchella, Skylight Estruturas
- Lei Bie: 商店
- 主创建筑师: Fernando Forte, Lourenço Gimenes, Rodrigo Marcondes Ferraz
- 设计团队: Gabriel Mota, Luciana Bacin
- 工程师: Gama Z
- 景观设计师: Juliana Freitas Paisagismo
- 顾问: Adriana Pastore, Desyree Niedo, Diogo Mondini, Priscylla Hayashi, Wanessa Simoe
- 合作方: Frederico Branco, Rafael Colombo, Nara Diniz
- 城市: Jardim America
- 地区: 巴西
• Jardim America, 巴西
© Rafaela Netto
来自建筑师。Líder Interiors是巴西的一个知名家具品牌,其旗舰店的设计点很简约——南北通透的玻璃盒子与部分夹层。
© Rafaela Netto
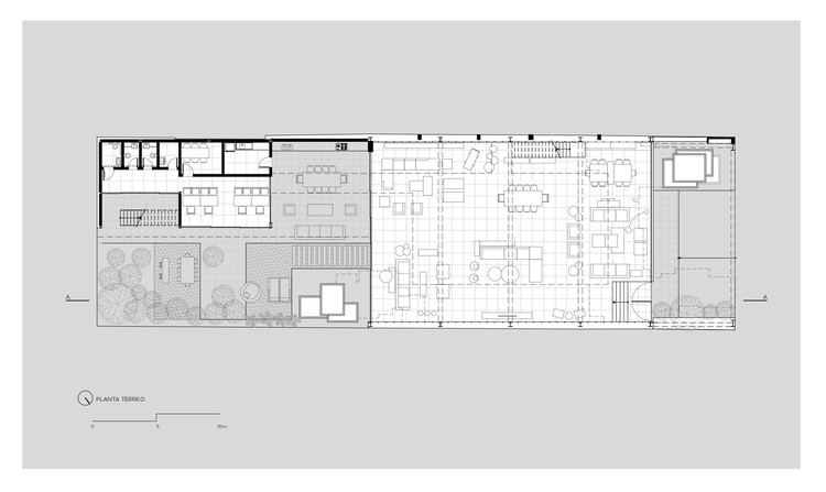
平面图
© Rafaela Netto
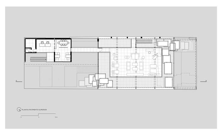
我们设计了较大面积的夹层,由6根细长的拉索悬浮在建筑中央,采用金属结合现浇混凝土的混合结构,巧妙地跨越15米间距。如何激活商店上层的活力向来是一个难题,此方案创造出一些惊喜,制造出二层的漂浮感,从而吸引顾客前往。
© Rafaela Netto
平面图
© Rafaela Netto
悬浮的金属构架从建筑外的人行道起始,以曲线和波浪的形态穿透玻璃进入商店内部,并再一次穿透玻璃向外扩散,超过6米高,形成雨篷与入口标识,像是相互重叠的拼图。室内部分的构架,一部分在日落时起遮阳板的作用,一部分可用作商店前部的天花板。夹层与构架的形状和装饰相似,两者交织相融宛若一体,底层的相关元素更加强化了这种感觉,并将其与户外家具陈列区连接。
文字描述由建筑师提供
译者 : 闫盛康
© Rafaela Netto
剖面图
© Rafaela Netto
数据来源:Archdaily,前往原文链接:https://www.archdaily.cn/cn/954606/liderjia-ju-qi-jian-dian-fgmf-arquitetos
声明:本站所有资源,如无特殊说明或标注,均收集于网络,且无法追溯原作者或持有人。任何个人或组织,在未征得本站同意时,禁止复制、盗用、采集、发布本站内容到任何网站、书籍等各类媒体平台。如若本站内容侵犯了原著者的合法权益,可联系我们进行处理:bigsone@qq.com。
