© Leonas Garbacauskas

    维尔纽斯, 立陶宛

    • 建筑师: Arches ; Arches
    • 面积 该建筑项目的领域 面积:  660 m²
    • 项目年份 该建筑项目的竣工年份 项目年份:  2015
    • 厂家 该项目中使用产品的品牌 厂家:  MARAZZI, MOEDING, Sapa Building System International NV
    • Lei Bie:  展厅
    • 团队:  Arunas Liola, Edgaras Neniskis, Rolandas Liola, Enrika Ges tautaite, Marijus Vroblevic ius
    • 室内:  Studio Pazma
    • 结构工程师 :  Arvydas Stumbras, Tomas Zvinys
    • 城市:  维尔纽斯
    • 地区:  立陶宛



    © Leonas Garbacauskas

    来自建筑师。LINEA 是一家办公室和装潢精致的室内陈列厅。

    © Leonas Garbacauskas

    建筑位于 Zverynas 的历史街区,它曾经是避暑圣地,现在变成了  Zverynas  老城的一部分。这里有着丰厚的历史遗产:老旧的木质房子与天然植物,使它成为该城市保存最完好的小规模历史居住区。面对严格的建筑与城市保护需求,同时营造现代的有纪念意义的供大众使用的开放场地,成了项目面临的主要挑战。

    © Leonas Garbacauskas

    建筑结构呼应了周边的城市小尺度。两个相互交错的小体量组成了这里。微微不规则的体量反射了场地的形状,并营造出自然的动感。这种动感来自于邻里建筑——混乱、不规则、老旧的木头或砖结构。为了把它整合在 Zverynas的城市小尺度里,建筑体量与轮廓传递出了双向坡屋顶的形式。狭窄的主立面面对着主街道。

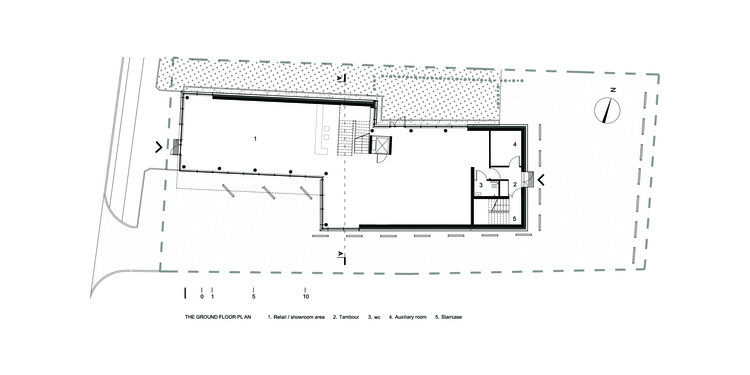
    平面图

    剖面图

    美学表达方面的主要想法受到了城市环境与公司名称 “Linea”(拉丁语 - 其中一个意思是" 线")的启发。体量的组成受到了邻里小而变化多端的影响,而外立面表现与材料使用映射出了公司的活动与展示。陶盘子是方形陶件单体,它们被用来进行幕墙装饰。窗前的百叶窗与分开的陶条打造出了优雅、轻盈与开放的效果。充满活力的幕墙线条被交织着不透明陶砖表皮所勾勒。除了美学功能,水平的百叶窗给屋里进行了遮阴,放置了夏天的燥热。阴影成为了室内视觉表达的一部分。整个目标是营造一种整体性——因此,陶砖墙延伸到了屋顶。塑料屋顶的屋脊细节强调了体量的连续性与整体感。

    © Leonas Garbacauskas

    集成的建筑建构有三层。一层与二层作为展览区。三层的屋顶之下是办公室。楼梯与电梯确保了2层售卖空间的可达性。

    设计师追求在室内尽量减少多余的装饰。然后留下开放的悬浮室内空间,并清晰传达销售的概念——展览室内与装修材料。暴露的混凝土表面、可见的管道系统与亮化展示成为了第二层背景元素。(室内还放置了室内设计工作室-“Plazma”)

    © Leonas Garbacauskas

    室外地面铺上了带孔隙的混凝土板与碎石。这样确保了地面的雨水下渗,并方面地进行雨水收集。连接周边的住宅的过度是草坪与绿植。开放性、良好的可达性与建筑的公共属性得到了强调。

    © Leonas Garbacauskas
    数据来源:Archdaily,前往原文链接:https://www.archdaily.cn/cn/795608/linea-zhan-shi-ting-arches

    声明:本站所有资源,如无特殊说明或标注,均收集于网络,且无法追溯原作者或持有人。任何个人或组织,在未征得本站同意时,禁止复制、盗用、采集、发布本站内容到任何网站、书籍等各类媒体平台。如若本站内容侵犯了原著者的合法权益,可联系我们进行处理:bigsone@qq.com。