© Marco Dapino
- 建筑师: Heim Balp Architekten
- 面积 该建筑项目的领域 面积: 4000 m²
- 项目年份 该建筑项目的竣工年份 项目年份: 2019
- 摄影师 摄影师: Marco Dapino
- 厂家 该项目中使用产品的品牌 厂家: Incontro Prefabbricati, Marcegaglia, Metadecor
- Lei Bie: 办公设施, 展厅
- 设计团队: Lorenzo Soldi, Michael Cradock, Federica Carletto
- 客户: Macchine per Caffe Espresso- Astoria group
- 本地建筑师: S.C. Euro Architect
- 规划师: S.C. Proiect Proconstruct / S.C. Parsymonia / S.C. Electric Eye
- 场地检测: S.C. RC Deinra
- 主施工方: S.C. Borghesi
- 机械装置: Ambra Service
- Arredi: Gruppo Spagnol
- 城市: Timișoara
- 地区: 罗马尼亚
• Timișoara, 罗马尼亚
© Marco Dapino
本项目文字描述由建筑师提供(译者:侯丹)
该综合体位于Astoria专业咖啡机的两个主要生产场地之一,该公司是具有悠久历史的意大利咖啡机品牌,也是世界第三大专业咖啡机制造商。MCE公司,隶属于Astoria集团,于2002年底开始在Timisoara进行生产。随着新工厂的建设,生产力有了很大的提高。Heim Balp Architekten的设计满足了客户对新布局的要求,从而能够增加日产量,同时也为公司塑造了更年轻化、更进取的整体形象。
© Marco Dapino
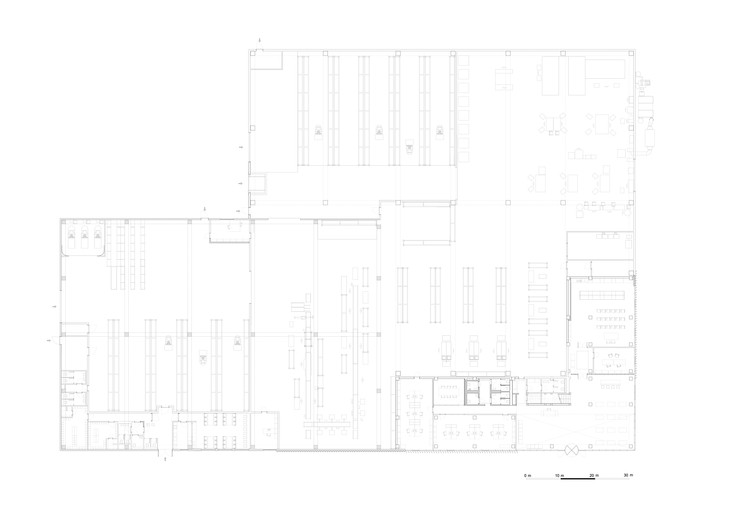
首层平面图
© Marco Dapino
该项目不是移动和建造新的设施,而是在保持原有结构的同时,实施一系列更重要的干预以改善其功能,并重塑工作空间、展览空间和办公空间。该建筑的功能包括一条全新的生产线、物流、新的行政和商业办公室以及培训区和展厅。现有结构已被改造为员工的更衣室和食堂,以及一些技术空间。
© Marco Dapino
新的MCE工厂分为两个部分:一个7米高的单层建筑作为生产区的主体,另一个两层建筑容纳了办公室、会议室、展厅和培训空间。为主要公共入口配备了一个双层通高空间,这也是接待访客的前台和展厅所在处;办公室和会议室则位于上层,俯瞰地面中庭。
© Marco Dapino
正如建筑师所说,“一侧的办公室和公共建筑表达了公司对展示形象的需求,这一位置能够向客户和分销商充分展示产品及其价值;而另一侧的空间则是为了保证行政部门的效率和活力”。生产区平面面积达到4000平方米,以保证咖啡机日产量增加到100台。
© Marco Dapino
轴测分析图
© Marco Dapino
“生产过程和新的设计都需遵循准时到位的思想,即生产线中每一个环节所需的材料必须在其被需要时即时到位,因为产品一完成就会被运输出去,从而最大限度地减少存储的需求”,Pietro Balp说道。
© Marco Dapino
关键的干预之一是立面设计,其中材料的选择定义了墙、玻璃立面以及红色铝制包层百叶的非连续组合,它们为整个体量提供了不同的透明度。“我们的目标是将建筑改造成Timisoara这种缺乏视觉参考的工业环境中的一个新的重要地标,不论是从周围的景观还是从高速公路上来看”,建筑师们解释说。
© Marco Dapino
从视觉上来说,这两座建筑是由红色金属包层的百叶连接和统一在一起的,根据建筑的不同功能其密度有所变化。在一层,生产区以密集百叶立面为特征;而展厅的设计遵循该公司的传统,通过透明玻璃幕墙提供了一个开放的视野。遮阳系统使得第二层空间具备半透明特征,同时利于建筑的自然通风。
剖面图
一系列必要的材料被选作内饰,有助于突出建筑轻盈透明的特点:木制镶板为代表性空间增添了温暖的氛围,办公室以玻璃作为隔断,并以一种混凝土饰面作为地面。所有的机械管道都暴露在外,以强调整体的工业美学,同时浅蓝色也被引入到办公室的家具中,形成了灰白对比。该项目在设计时还考虑到了对于场地以及车辆装卸空间的重新组织利用,从而改善物流运作。
© Marco Dapino
数据来源:Archdaily,前往原文链接:https://www.archdaily.cn/cn/926047/mce-ka-pei-ji-zhi-zao-gong-han-yu-zhi-hong-se-bai-xie-chuang-li-mian-heim-balp-architekten
