© Schnepp Renou

    英国

    • 建筑师: Gianni Botsford Architects
    • 面积 该建筑项目的领域 面积:  170 m²
    • 项目年份 该建筑项目的竣工年份 项目年份:  2023
    • 摄影师 摄影师: Schnepp Renou
    • 厂家 该项目中使用产品的品牌 厂家:  RODECA GMBH, Swisspearl
    • Lei Bie:  居住建筑
    • 设计团队:  James Eagle
    • 主持建筑师:  Stephanie Aue, Gianni Botsford, James Eagle, Oli Martin
    • 结构工程与咨询:  Horne & Littlemore Structural Engineers
    • 地区:  英国



    © Schnepp Renou

    位于怀特岛西部的牛津路山脊上,周围是大片牧场,靠近船厂和轻工业区,The Old Byre 是由两座农场建筑改造而成的住宅,同时也为来访艺术家提供了住宿和工作空间。

    © Schnepp Renou

    项目的外部使用波纹水泥板进行包覆,旧谷仓的内部大体保持原貌,优先考虑保留而非拆除旧有结构。

    © Schnepp Renou

    Site Plan

    © Schnepp Renou

    © Schnepp Renou

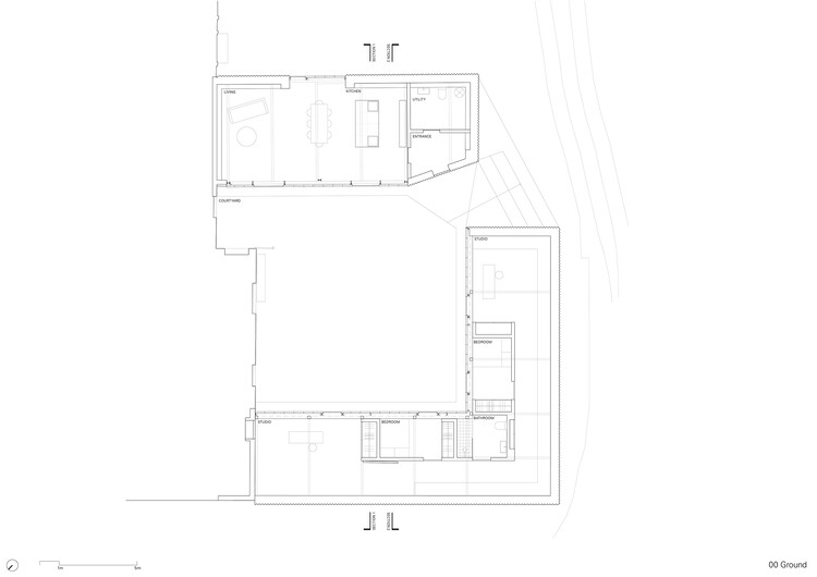
    从外部看,The Old Byre 住宅与附近的其他农场建筑没有区别。然而,从中央庭院看,原来的地表和排水沟缝隙中生长着杂草,一个复杂的住宅外立面呈现出来,透过大型玻璃铝门与透明的聚碳酸酯外立面,连接着每个生活与工作空间,为每个区域提供了独立的入口。

    © Schnepp Renou

    Ground Floor Plan

    © Schnepp Renou

    构成 The Old Byre 的两座建筑被有意保持不连接。日常生活通过私密和社交空间之间的过道交织互动,伴随清晨的凉爽、雨水与夏日的炎热。在夜晚,外立面透光,隐隐约约透出室内的活动。在较老的谷仓部分,构建了一座由云杉胶合板建成的“房中之房”,一个后巷连接着它所容纳的更私密的内部空间,这些空间通过没有传统把手或锁的全高门进行调节和调整。

    © Schnepp Renou

    Section 1

    © Schnepp Renou

    混凝土基座支撑着外立面,框定了庭院,并延伸至室内,成为改造过程中空间连接的基础。曾经这里住着动物,而今是人类。设计灵感来源于集市、档案馆、工作与工业的声音、环境的需求、社交、共享食物与关爱等建筑原型。

    © Schnepp Renou
    数据来源:Archdaily,前往原文链接:https://www.archdaily.cn/cn/1027387/the-old-byre-zhu-zhai-gianni-botsford-architects

    声明:本站所有资源,如无特殊说明或标注,均收集于网络,且无法追溯原作者或持有人。任何个人或组织,在未征得本站同意时,禁止复制、盗用、采集、发布本站内容到任何网站、书籍等各类媒体平台。如若本站内容侵犯了原著者的合法权益,可联系我们进行处理:bigsone@qq.com。