© Hugo Santos Silva
- 建筑师: Bruno Dias Arquitectura
- 面积 该建筑项目的领域 面积: 80 m²
- 项目年份 该建筑项目的竣工年份 项目年份: 2024
- Lei Bie: 独立住宅
- 主创建筑师: Bruno Dias
- 城市: Ansião
- 地区: 葡萄牙
• Ansião, 葡萄牙
© Hugo Santos Silva
来自建筑师。Verde Gago 住宅坐落于 Ansião 的历史街区,项目以修复旧建筑的方式重新焕发生机。在尊重原有环境记忆的基础上,建筑赋予了场所一种新的当代气质,使其在历史与当代之间建立起一种和谐的对话。项目通过审慎的设计决策,既保留了场地原有的身份特征,又赋予其现代化的生活方式,展现了一种在时间维度上的平衡。
© Hugo Santos Silva
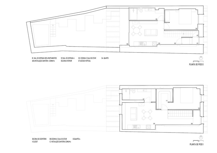
Plantas
© Hugo Santos Silva
© Hugo Santos Silva
建筑名称“Verde Gago 住宅”源自建筑所处街道的名称与外立面采用的绿色。这一色彩选择不仅呼应了葡萄牙传统民居的色彩体系,同时也承载了一种微妙的怀旧情感,使传统与当代在视觉上相互交融。这种色彩策略不仅是一种美学决策,更是对场所记忆的致敬。建筑的主要材料——木材,进一步强调了这一历史与当代的结合。木材的使用呼应了葡萄牙传统建筑的构造方式,同时在形式上又有所创新,使其在街道的整体风貌中既能融入,又不失独特性。无论是建筑结构还是室内细节,木材的运用都为空间营造出一种温暖且富有亲和力的氛围。
© Hugo Santos Silva
© Hugo Santos Silva
Verde Gago 住宅的另一大核心要素是庭院空间。原本的场地曾是一座酒窖,而在改造过程中,这一空间被重新定义,变成了一个带有水景与简约绿化的现代庭院。庭院不仅是社交生活的延伸,同时也强化了建筑与自然的联系,使居住者能够在日常生活中感受到一种静谧且富有品质的空间体验。在空间布局上,项目被划分为两个独立的一居室公寓(T1),分别位于上下两层。每个公寓均包含一间卧室、厨房、起居区、卫生间,以及在上层单元中额外设有一个办公区与步入式衣帽间。垂直交通空间成为结构的核心组织元素,在明确功能分区的同时,也增强了空间的流动感。Verde Gago 住宅通过对旧建筑的敏感再利用,将历史遗产与现代生活方式相结合,以一种低调而富有力量的方式回应了场地的文化背景,同时也展现了当代建筑在历史环境中的介入策略。
© Hugo Santos Silva
数据来源:Archdaily,前往原文链接:https://www.archdaily.cn/cn/1027015/verde-gago-zhu-zhai-bruno-dias-arquitectura
