© Matthieu Petiard
- 建筑师: Tout Va Bien architecture
- 面积 该建筑项目的领域 面积: 175 m²
- 项目年份 该建筑项目的竣工年份 项目年份: 2024
- 摄影师 摄影师: Matthieu Petiard
- 厂家 该项目中使用产品的品牌 厂家: PRB, Steico
- Lei Bie: 居住建筑, 独立住宅, 改造项目
- 主创建筑师: Camille Chapin, Stéphane Herpin
- 工程与咨询 > 结构: Axiolis, Boské
- 城市: 马赛
- 地区: 法国
• 马赛, 法国
© Matthieu Petiard
该项目涉及对一栋 20 世纪 50 年代已加高的联排别墅进行修复与再次加高。该别墅位于街区中心,具有悬挑部分,且街道一侧设有退缩空间,这符合当地城市规划(PLU)的发展变化。遵循现行城市规划规定,加高部分扩展了庭院一侧的布局,并恢复了街道一侧的建筑序列。
© Matthieu Petiard
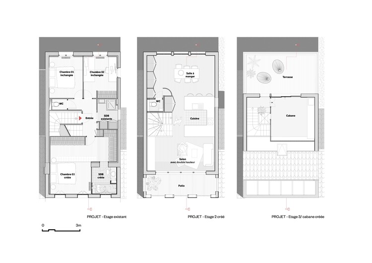
平面图
© Matthieu Petiard
这一限制条件被用作创造南向户外空间的机会,该空间与居住区域无缝连接。受“马赛露台”启发,新的“戏剧性”立面既保留了隐私,又提升了夏季舒适度,同时保持了城市景观的协调性。
© Matthieu Petiard
剖面图
© Matthieu Petiard
为减轻对现有结构的荷载,选择了木框架,该框架由当地木匠和一家专业工程公司合作开发。项目重点采用了传统上用于普罗旺斯农舍的雪松木,并通过实验室测试评估其机械性能,探索建立可持续的本地供应链的可能性。
© Matthieu Petiard
立面在车间进行预制,有助于将施工对密集城市环境的影响降至最低。因此,该项目为马赛市中心的可持续加密提供了一个创新模型,解决了当代住房挑战。
© Matthieu Petiard
数据来源:Archdaily,前往原文链接:https://www.archdaily.cn/cn/1028637/vpa-lian-pai-bie-shu-tout-va-bien-architecture
声明:本站所有资源,如无特殊说明或标注,均收集于网络,且无法追溯原作者或持有人。任何个人或组织,在未征得本站同意时,禁止复制、盗用、采集、发布本站内容到任何网站、书籍等各类媒体平台。如若本站内容侵犯了原著者的合法权益,可联系我们进行处理:bigsone@qq.com。
