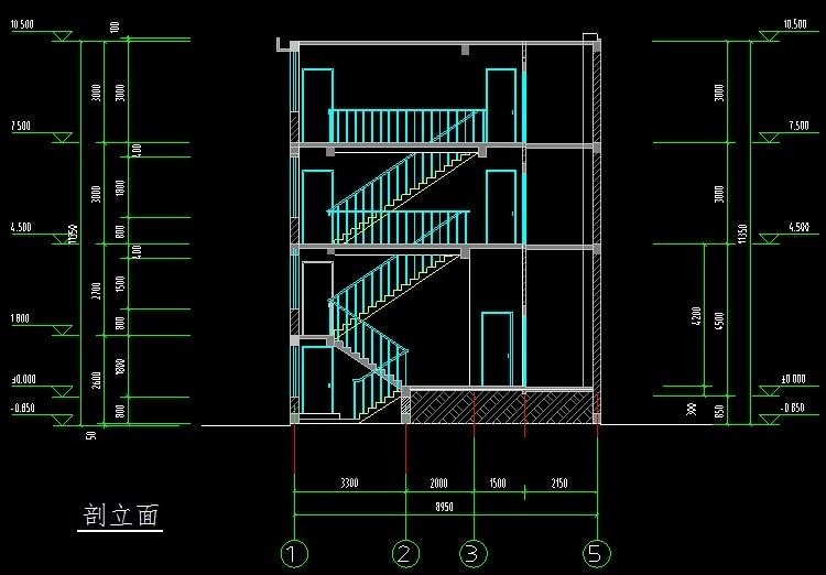
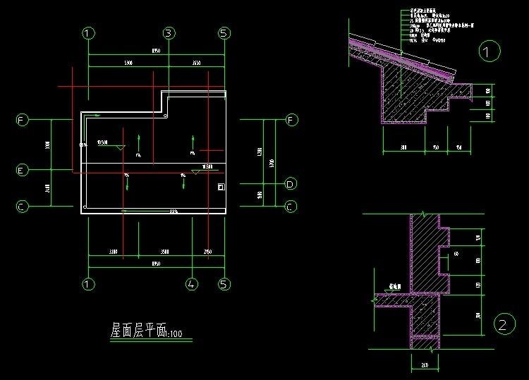
本图库为别墅新农村自建房设计CAD图纸素材,拥 有多种农村小别墅、自建房设计图全套CAD施工图纸,提供给网友免 费下载,设计参考使用。别墅设计方案可在“
每日一图”中查看 相关素材分享。















CAD图纸资源下载地址(提取码在上文中):https://pan.baidu.com/s/1jIICMc2
声明:本站所有资源,如无特殊说明或标注,均收集于网络,且无法追溯原作者或持有人。任何个人或组织,在未征得本站同意时,禁止复制、盗用、采集、发布本站内容到任何网站、书籍等各类媒体平台。如若本站内容侵犯了原著者的合法权益,可联系我们进行处理:bigsone@qq.com。
